Bright 3-bed detached house on a large private plot, no forward chain.
Large entrance hall with coat cupboard and ground-floor shower room
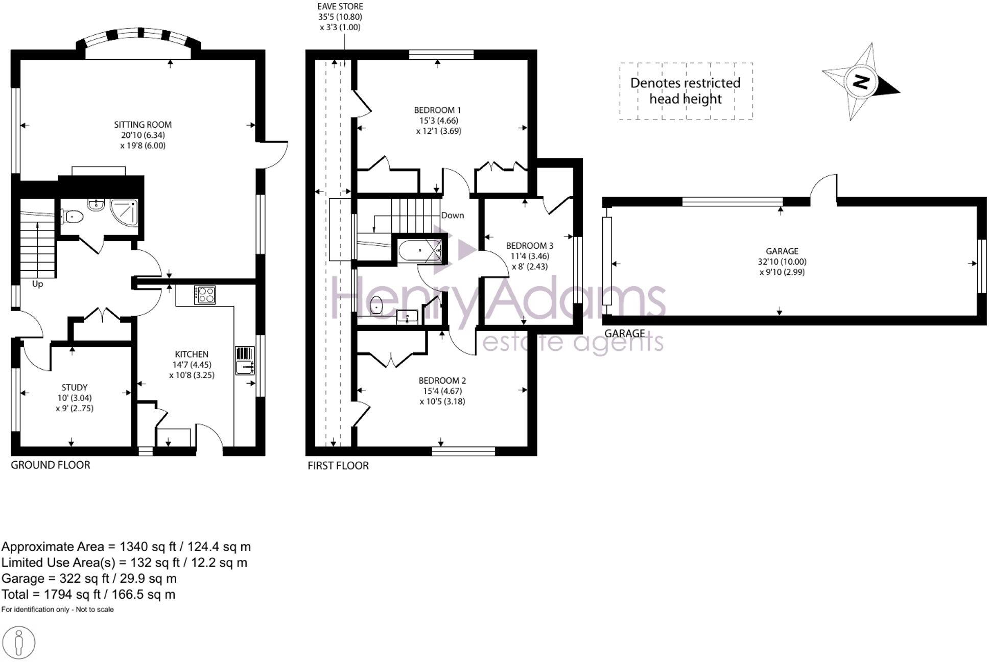
Set in a quiet, sought-after corner of Storrington, this detached 1960s home offers bright, flexible living over a generous footprint. The triple-aspect sitting/dining room with feature bay and the adjoining snug create distinct family and work-from-home zones, while a large entrance hall and ground-floor shower room add practical day-to-day convenience.
Upstairs are three double bedrooms with built-in cupboards; bedrooms 1 and 2 include useful eaves storage. The kitchen benefits from pantry storage and side access to a well-established, mature garden that provides privacy and plenty of space for children, pets and outdoor entertaining. A detached tandem garage plus driveway parking deliver comfortable vehicle and storage options.
This property will particularly suit families seeking space, good local schools and a peaceful setting within easy reach of village amenities. It is offered with no forward chain, allowing a quicker move. The house is substantial in size and set on a large plot, giving clear scope to modernise or reconfigure to personal taste.
Buyers should note practical drawbacks: the EPC is rated D and the property is described in traditional 1960s condition, so updating to improve energy efficiency and decor is likely. Council tax is described as expensive. Overall, this is a characterful, roomy family home with strong potential for improvement and extension subject to planning.
3 bedroom semi-detached house for sale in Meadowside, Pulborough, RH20 — £370,000 • 3 bed • 1 bath • 1136 ft²
3 bedroom detached house for sale in Fox Dell, Storrington, RH20 — £725,000 • 3 bed • 2 bath • 1658 ft²
3 bedroom detached bungalow for sale in Fryern Road, Storrington, West Sussex, RH20 — £800,000 • 3 bed • 2 bath • 1967 ft²
4 bedroom detached house for sale in Link Hill, Storrington, RH20 — £875,000 • 4 bed • 3 bath • 1948 ft²
4 bedroom detached house for sale in Stor Meadow, Storrington, RH20 — £575,000 • 4 bed • 2 bath • 1439 ft²
3 bedroom detached house for sale in Dean Way, Storrington, RH20 — £500,000 • 3 bed • 1 bath • 1550 ft²






























































































