Spacious rooms, big garden and great commuter links — ideal for first-time buyers.
Victorian mid-terrace with bay windows and period character
Versatile loft room (16' x 12') for office or occasional bedroom
Large rear garden with decking — strong entertaining space
Good transport links to town, stations and motorways
Double glazing and gas central heating present
Requires modernisation; cosmetic and energy upgrades needed
Solid brick walls; likely no cavity insulation (assumed)
Freehold tenure and lower council tax cost
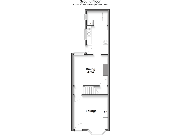
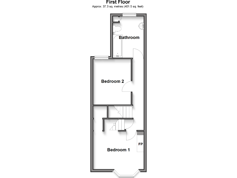
A spacious Victorian mid-terrace offering generous room sizes and a versatile loft room ideal for home office or occasional bedroom use. The property retains period character including bay windows and solid brick walls, while benefiting from double glazing and gas central heating.
The large, private rear garden with decking creates a strong entertaining space and adds valuable outdoor living in a city-setting. Internal layout is open-plan in parts, with a long kitchen and separate lounge and dining areas that suit first-time buyers or investors seeking rental potential.
The house requires modernisation throughout and the solid brick construction likely lacks cavity wall insulation, so buyers should budget for energy improvements and cosmetic refurbishment. Tenure is freehold and council tax is described as cheap, which supports running-cost savings.
Located close to Maidstone town centre, local schools (including two top-10% ranked options) and good transport links, the home is well placed for commuting, colleges and local amenities, making it a practical purchase for owner-occupiers or a straightforward rental proposition for landlords.
3 bedroom terraced house for sale in Melville Road, Maidstone, Kent, ME15 — £260,000 • 3 bed • 1 bath • 685 ft²
2 bedroom terraced house for sale in Lower Boxley Road, Maidstone, Kent, ME14 — £235,000 • 2 bed • 1 bath • 776 ft²
2 bedroom terraced house for sale in Tonbridge Road, Maidstone, ME16 — £300,000 • 2 bed • 1 bath • 954 ft²
2 bedroom end of terrace house for sale in Bell Lane, Ditton, Aylesford, Kent, ME20 — £300,000 • 2 bed • 1 bath • 776 ft²
2 bedroom end of terrace house for sale in Smith Street, Strood, Rochester, Kent, ME2 — £250,000 • 2 bed • 1 bath • 765 ft²
2 bedroom terraced house for sale in Thornhill Place, Maidstone, Kent, ME14 — £240,000 • 2 bed • 1 bath • 560 ft²














































































