RH10 8JL - 2 bedroom terraced house for sale in Redwood Close, Crawley…

View on Property Piper

2 bedroom terraced house for sale in Redwood Close, Crawley, West Sussex, RH10

Summary - 33 REDWOOD CLOSE CRAWLEY RH10 8JL

2 bed 1 bath Terraced

**Standout Features:**
- Two spacious double bedrooms
- Modern fitted kitchen with built-in appliances
- Light-filled lounge/dining room
- Rear garden with access to garage
- Convenient access to Crawley Town Centre
- Freehold property, offered chain-free

**Potential Concerns:**
- High crime rate in the area
- Exterior maintenance needed

Discover this charming mid-century terraced home, ideally situated in the popular Northgate neighborhood—perfect for first-time buyers seeking a blend of comfort and convenience. This tidy two-bedroom property features an airy lounge/dining room and a modern kitchen, creating a welcoming atmosphere. With generous-sized bedrooms and a rear garden that boasts access to a garage, this home offers both functionality and privacy.

The property’s location provides easy access to the vibrant Crawley Town Centre, making it a fantastic choice for those wanting urban amenities within reach. While the property does require some exterior maintenance, it offers incredible potential—with no onward chain, you could make it your own without delay. This inviting home provides a perfect canvas for creating lasting memories; don't miss your chance to invest in this gem!

Property Details

Brochure Descriptions

Image Descriptions

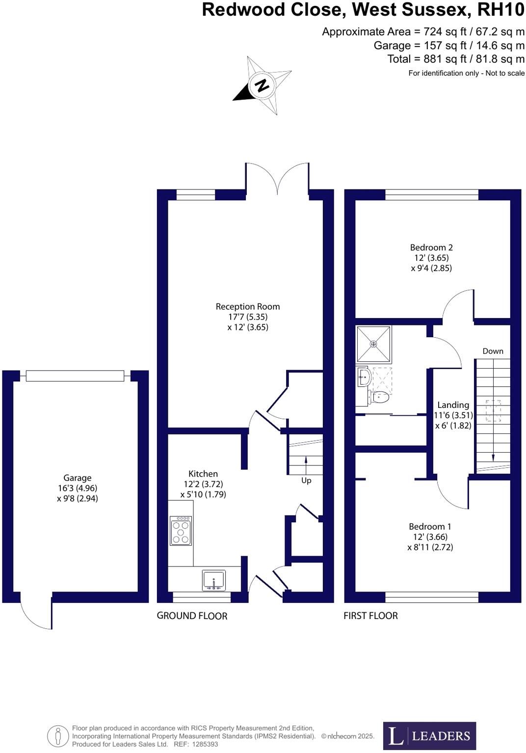
Floorplan Description

Rooms

Textual Property Features

Detected Visual Features

EPC Details

Nearby Schools

Nearest Bars And Restaurants

,,,,}

Nearest General Shops

,,}

Nearest Grocery shops

,,}

Nearest Supermarkets

,,}

Nearest Religious buildings

,,}

Nearest Medical buildings

,,,}

Nearest Airports

}

Nearest Leisure Facilities

,,,,}

Nearest Tourist attractions

,,}

Nearest Train stations

,,,,}

Nearest Bus stations and stops

,,,,}

Nearest Hotels

,,}

Tags

Local Market Stats

AirBnB Data

Similar Properties

Meta

High Res Images

Compatible Images

Low res Images

Thumbnails

Raw Images

High Res Floorplan Images

Compatible Floorplan Images

Low res Floorplan Images

FloorplanImages Thumbnail

Raw Floorplan Images