**Standout Features:**
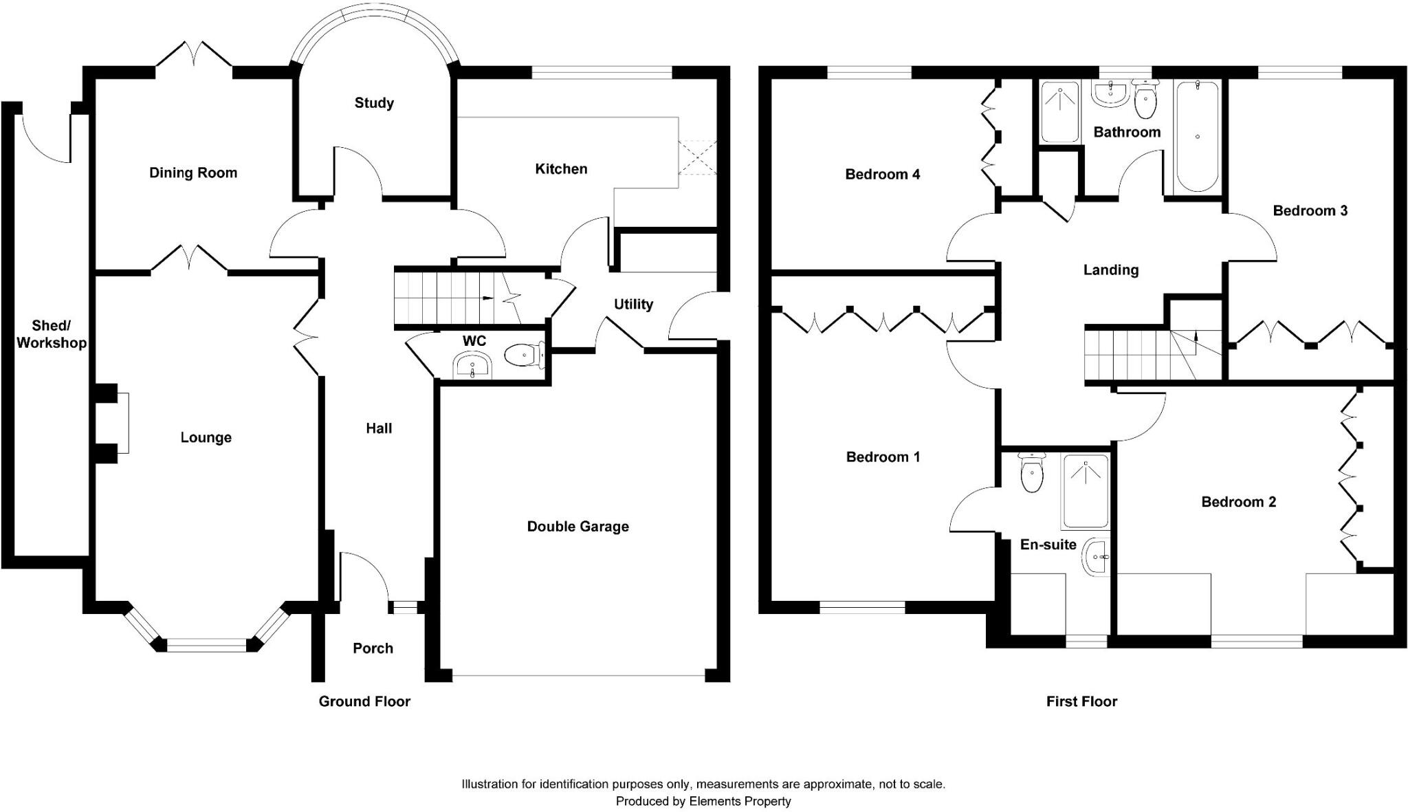
- Impressive four double bedrooms, including a master suite with ensuite.
- Spacious receptions: lounge, dining room, and versatile study.
- Well-maintained landscaped rear garden for outdoor entertaining.
- Ample parking with a driveway and double garage.
- Modern interior in show home condition—newly renovated.
**Notable Concerns:**
- Average-sized property may limit privacy from neighboring homes.
- Council tax rated as expensive.
Discover this executive four-bedroom detached home on Lilleshall Drive, nestled in the desirable Abbeyfields development of Bedford. With generous double bedrooms and a luxurious master suite complete with an ensuite, this residence cleverly combines comfort and modern family living. The beautifully maintained interiors feature distinct reception areas, including a spacious lounge and an elegant dining room, perfect for both relaxation and gatherings. A stylish, well-equipped kitchen complements the design, while a dedicated study caters to remote work needs.
Step outside to enjoy a landscaped garden, ideal for entertaining and outdoor activities, along with an appealing front garden that enhances curb appeal. The double garage and ample driveway ensure plenty of parking space for family and guests.
This property is set in an affluent area with very low crime rates, making it perfect for families. Local schools with Good ratings and community amenities nearby add to its family-friendly charm. Don't miss the opportunity to secure this exceptional home; viewing is essential given its pristine condition and desirable location. Future renovation potential allows for personal touch and growth, making this home a lasting investment.







































































