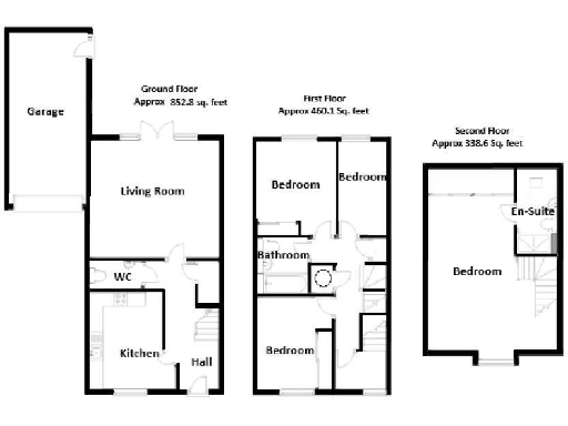
**Standout Features:**
- Modern townhouse built in 2017
- Four spacious bedrooms (including a master suite with vaulted ceiling)
- Two bathrooms (family bathroom and en suite)
- Bright and airy kitchen/breakfast room
- Generous living room with garden access
- Rear patio and garden, ideal for outdoor relaxation
- Garage and two off-road parking spaces
- Convenient location near local amenities and schools
- Remainder of NHBC warranty
This modern, well-presented townhouse is a fantastic opportunity for families or first-time buyers seeking both space and comfort in a desirable location. Spanning three stories, the home features an inviting living room and a functional kitchen/breakfast room perfect for family gatherings. Four bedrooms provide ample space for everyone, with the impressive master suite offering an en suite shower room and serene countryside views.
The property's exterior includes a manageable-sized garden with a patio, ideal for outdoor entertaining, alongside a garage and two off-road parking spots for added convenience. The location is particularly appealing, situated close to local amenities including a supermarket and excellent school options. With easy access to transportation links, including the high-speed rail, you can enjoy both a peaceful setting and the vibrancy of town life.
The home does come with an annual service charge of approximately £270 for communal areas, and the average-sized plot provides potential for further personalization. Don't miss this opportunity to secure a modern home with excellent future potential—arrange your viewing today!
3 bedroom detached house for sale in Neptune Drive, Folkestone, CT20 — £425,000 • 3 bed • 2 bath • 1228 ft²
4 bedroom semi-detached house for sale in Westbrook Drive, Folkestone, CT20 — £500,000 • 4 bed • 2 bath • 1596 ft²
4 bedroom semi-detached house for sale in Dragoon Place, Folkestone, Kent, CT20 — £360,000 • 4 bed • 3 bath • 1042 ft²
3 bedroom end of terrace house for sale in Ledwidge Road, Folkestone, Kent, CT20 — £350,000 • 3 bed • 2 bath • 1068 ft²
4 bedroom semi-detached house for sale in Bluebell Gardens, Folkestone, Kent, CT20 — £639,995 • 4 bed • 3 bath • 1929 ft²
3 bedroom terraced house for sale in Hawkinge, CT18 — £325,000 • 3 bed • 3 bath • 1200 ft²


















































































































