**Standout Features:**
- Charming 2-bedroom Victorian terrace with stylish contemporary decoration.
- Spacious living room with bay window and decorative fireplace.
- Versatile lower ground level ideal for multiple uses; potential for home office or guest suite.
- Private south-facing garden, perfect for summer relaxation.
- Convenient location near local shops, cafes, and Watford Junction Station (18-minute train to London Euston).
**Potential Concerns:**
- On-street parking only.
- High crime rate in the wider area, necessitating careful consideration.
- Solid brick walls may lack insulation; potential maintenance may be needed.
**Summary:**
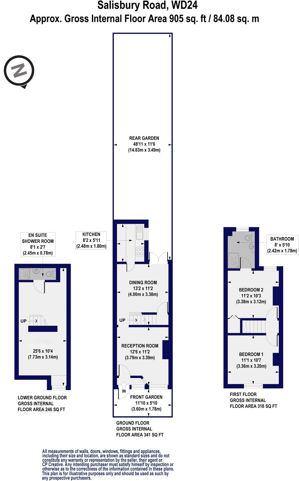
Discover this beautifully presented 2-bedroom Victorian terraced home in the heart of North Central Watford. With approximately 900 sq. ft. of living space, the property features a warm and inviting lounge complete with a decorative fireplace and large bay window, leading seamlessly into a dining room that comfortably accommodates gatherings. The sleek galley kitchen opens to a sun-drenched south-facing garden, offering a perfect outdoor retreat.
Upstairs, the main bedroom is designed for comfort, while the adaptable lower ground level provides ample space for a home office, gym, or guest accommodation with its own ensuite. Set just off St Albans Road, enjoy easy access to local amenities, vibrant pubs, exceptional schools, and stunning outdoor spaces like Cassiobury Park. With its blend of charm, practicality, and modern touches, this property is a fantastic opportunity for first-time buyers, young families, and investors looking for a slice of suburban tranquility with city connectivity. Don't miss the chance to view this unique home—opportunities like this don't last long!
2 bedroom terraced house for sale in Watford, Hertfordshire, WD18 — £375,000 • 2 bed • 1 bath • 683 ft²
2 bedroom terraced house for sale in Cromer Road, Watford, Hertfordshire, WD24 — £425,000 • 2 bed • 1 bath • 841 ft²
3 bedroom terraced house for sale in Yarmouth Road, Watford, WD24 — £460,750 • 3 bed • 1 bath • 869 ft²
2 bedroom terraced house for sale in Banbury Street, Watford, WD18 — £395,000 • 2 bed • 1 bath • 840 ft²
3 bedroom terraced house for sale in Holywell Road, Watford, Hertfordshire, WD18 — £350,000 • 3 bed • 1 bath • 738 ft²
2 bedroom terraced house for sale in Regent Street, Watford, WD24 — £440,000 • 2 bed • 1 bath • 1034 ft²






























































































