**Standout Features:**
- Newly constructed semi-detached home with three floors
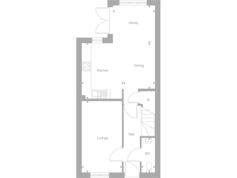
- Modern open plan kitchen and dining room featuring French doors leading to a generous garden
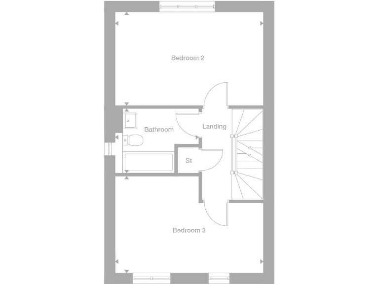
- Spacious principal bedroom with en-suite and dormer window
- Off-street parking available
- 10-year NHBC warranty; built by a reputable 5-star builder with a high customer recommendation rate
**Summary:**
Discover the perfect family home in this modern semi-detached property, designed for comfort and spacious living. With three floors of intelligently laid-out space, the ground floor welcomes you with a bright and airy open plan kitchen and dining area, perfect for family gatherings. The large French doors create a seamless connection to a sizable garden, ideal for children and outdoor entertaining.
Upstairs, you'll find a charming principal bedroom complete with an en-suite and dormer window, allowing natural light to fill the space. The property boasts a total of three well-proportioned bedrooms, along with a family bathroom, making it perfect for both growing families and those needing extra space. Off-street parking adds to the convenience.
Situated in a family-friendly community with access to local amenities and highly-rated schools, this property is not just a home, but a lifestyle. Although the surrounding area has above-average crime rates, the appealing structure and modern features of this home, combined with its future potential for renovations, make it a must-see. Priced at £615,000 with a manageable service charge, act quickly—properties like this are in high demand and won’t last long!
3 bedroom semi-detached house for sale in Chobham Road,
Surrey,
GU16 8QD, GU16 — £519,995 • 3 bed • 1 bath • 673 ft²
4 bedroom detached house for sale in Chobham Road,
Surrey,
GU16 8QD, GU16 — £790,000 • 4 bed • 1 bath • 903 ft²
3 bedroom semi-detached house for sale in Chobham Road,
Surrey,
GU16 8QD, GU16 — £564,995 • 3 bed • 1 bath • 624 ft²
3 bedroom semi-detached house for sale in Chobham Road,
Surrey,
GU16 8QD, GU16 — £550,000 • 3 bed • 1 bath • 624 ft²
2 bedroom apartment for sale in Chobham Road,
Surrey,
GU16 8QD, GU16 — £350,000 • 2 bed • 1 bath • 556 ft²
2 bedroom apartment for sale in Chobham Road,
Surrey,
GU16 8QD, GU16 — £360,000 • 2 bed • 1 bath • 568 ft²






































