Characterful three-bedroom home with sizeable garden and development potential.
Large 0.2-acre plot with productive vegetable gardens
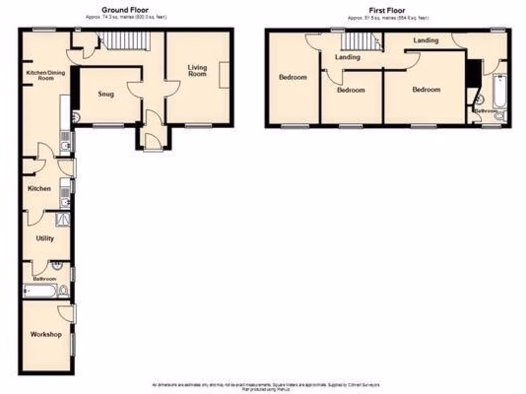
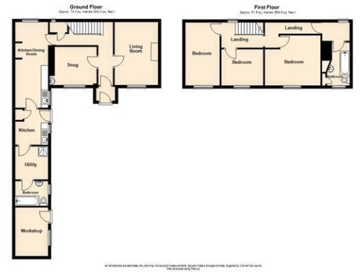
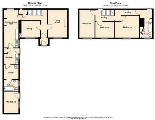
A roomy three-bedroom terraced cottage set on a large 0.2-acre plot in the heart of Dolton. The house offers two reception rooms, a long kitchen with Rayburn, utility, two bathrooms and useful outbuildings, giving immediate family comfort and scope for improvement. The rear garden fronts a parish road and the site offers potential for a garage or workshop (subject to planning permission).
The village location is a genuine selling point: primary school, post office, two pubs, shops and excellent countryside walking from your doorstep. Barnstaple and Bideford are around 30 minutes by car and the coast and national parks are within easy reach, making this practical for countryside families who value accessibility.
Practical considerations are straightforward: the property is oil‑fired with boiler and radiators, double glazed post‑2002, and built c.1950s–60s with assumed uninsulated cavity walls. Some fittings need updating (notably an upstairs orange bathroom suite and a former shower room), and services/appliances have not been tested — buyers should arrange their own inspections. Overall, this is a large, characterful family home with clear renovation potential and useful development options subject to consent.
3 bedroom detached house for sale in Cleave Hill, Dolton, Winkleigh, Devon, EX19 — £350,000 • 3 bed • 1 bath • 1039 ft²
2 bedroom terraced house for sale in Stafford Way, Dolton, Devon, EX19 — £180,000 • 2 bed • 1 bath • 771 ft²
2 bedroom bungalow for sale in Dolton, Winkleigh, EX19 — £560,000 • 2 bed • 2 bath • 1525 ft²
2 bedroom bungalow for sale in Stafford Way, Dolton, Winkleigh, Devon, EX19 — £240,000 • 2 bed • 1 bath • 608 ft²
2 bedroom bungalow for sale in Orchard Gate, Dolton, Winkleigh, Devon, EX19 — £240,000 • 2 bed • 1 bath • 576 ft²
4 bedroom cottage for sale in South Street, Dolton, Winkleigh, Devon, EX19 — £425,000 • 4 bed • 3 bath • 1466 ft²


















































































































