Five bedrooms, refitted kitchen and private garden for family living.
Central Durham location, minutes' walk to shops and transport
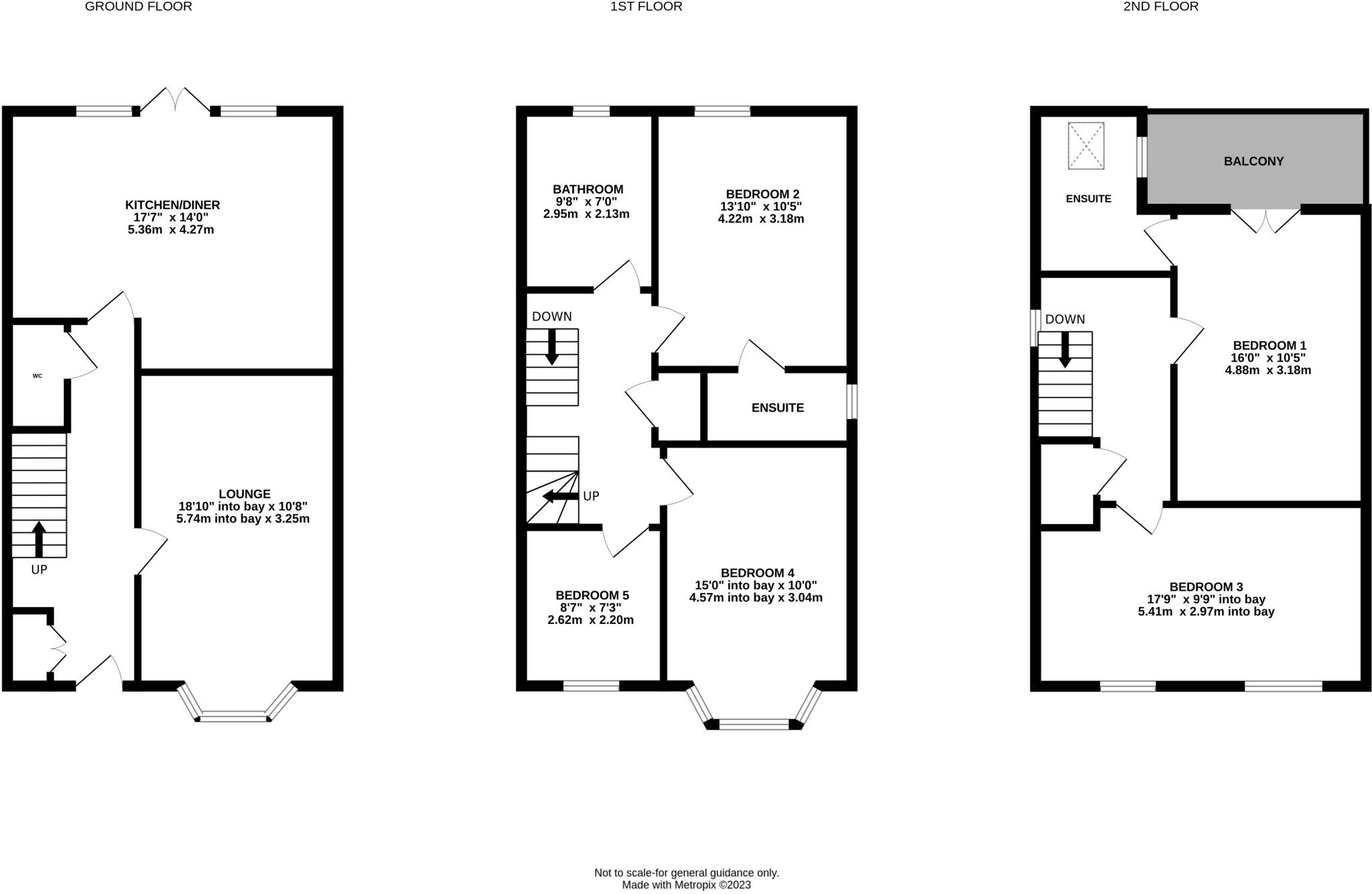
Set within an award-winning 2015 development, this five-bedroom town house offers a spacious, flexible layout for family living just minutes from Durham city centre. A recently refitted open-plan kitchen/diner with island and integrated appliances sits beside a bay-fronted lounge; French doors lead to a small, lawned private rear garden. Two bedrooms have en suite shower rooms and the main bedroom benefits from a private balcony, adding useful privacy and outdoor space at upper level.
Practical features include gas central heating, double glazing, driveway parking and a garage. The development has NHBC cover remaining until August 2026. The house is well placed for highly regarded local schools, shops, restaurants, bus and rail links — offering a rare mix of city convenience and a calm residential feel.
Buyers should note some important matters: the management company has recently changed and a forthcoming management charge has not yet been set. The garage is leasehold and subject to an annual management charge. The property sits in Durham City Conservation Area and is affected by an Article 4 direction; there are TPOs on the embankment forming part of the rear garden. The site is in a coal mining reporting area and prospective purchasers should commission any further searches they consider necessary.
Council Tax is Band F (expensive) and the plot is modest in size. Overall this is a well-presented family townhouse with contemporary fittings and city-centre convenience, best suited to buyers who value a ready-to-move-in home but will accept managed communal areas and the conservation-related planning constraints.
3 bedroom end of terrace house for sale in The Bowers, Durham, DH1 — £600,000 • 3 bed • 3 bath • 1615 ft²
4 bedroom detached house for sale in Bishops Gate, Durham, DH1 — £850,000 • 4 bed • 3 bath • 2387 ft²
5 bedroom town house for sale in The Sidings, Durham, County Durham, DH1 — £440,000 • 5 bed • 3 bath • 1359 ft²
4 bedroom town house for sale in Illingworth Grove, Durham, DH1 — £450,000 • 4 bed • 3 bath • 1410 ft²
3 bedroom detached house for sale in Illingworth Grove, Durham, DH1 — £390,000 • 3 bed • 2 bath • 927 ft²
5 bedroom terraced house for sale in Briardene, Durham City, DH1 — £395,000 • 5 bed • 2 bath • 1264 ft²


















































































