Chain‑free two‑bed bungalow with driveway, gardens and easy access to local schools and the M20..
Chain free and freehold
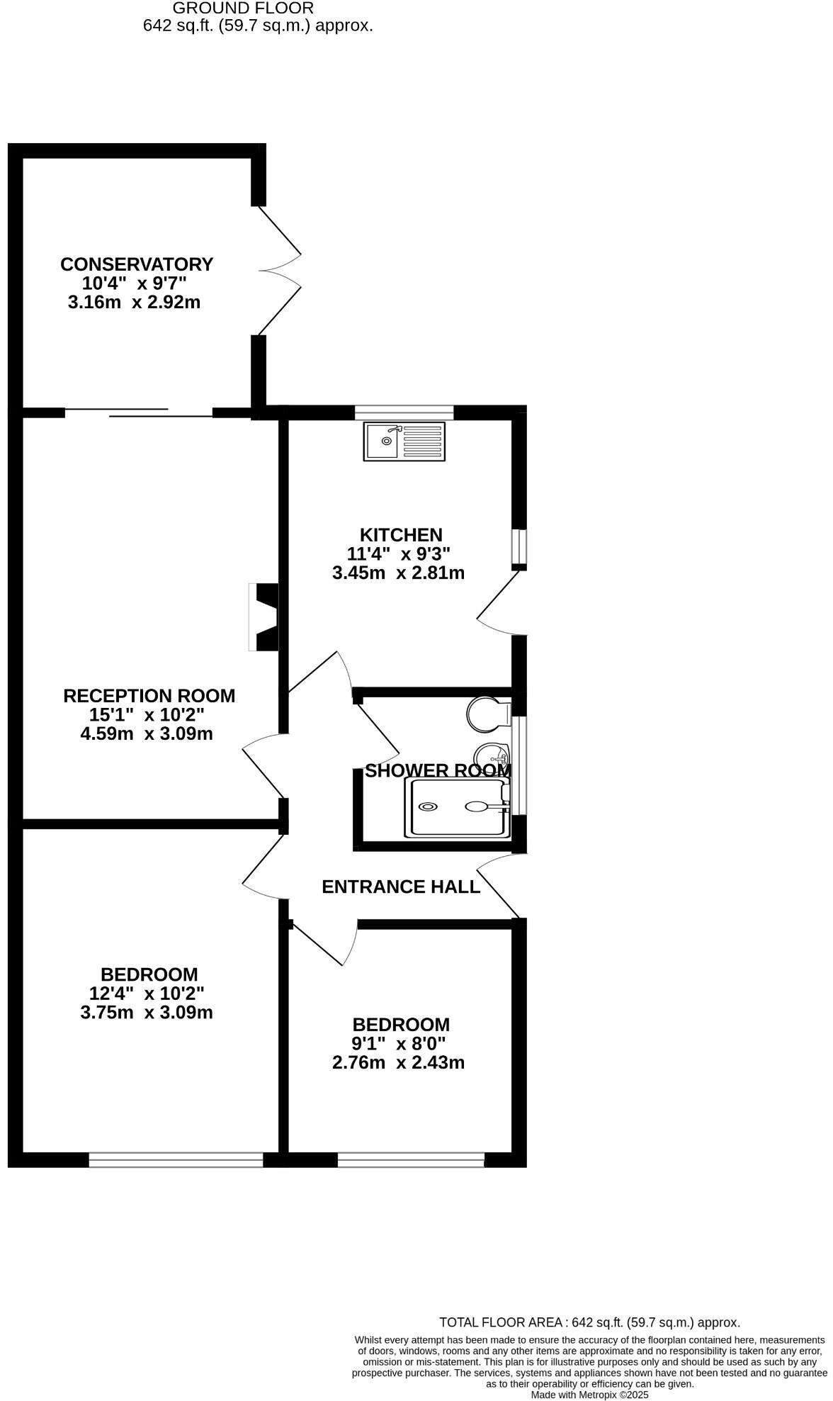
Two double bedrooms, single shower room
Living room with fireplace and conservatory
Driveway plus front and rear gardens
Decent plot with shed, patio and small pond
EPC rating D — scope for energy improvements
Approx. 642 sq ft — average‑sized bungalow
Moderate Council Tax (Band D)
This semi‑detached bungalow on Howard Drive is a practical, chain‑free option for downsizers seeking single‑storey living in popular Allington. The layout includes two double bedrooms, a living room with fireplace, conservatory and a compact kitchen — all on one level with loft access for extra storage.
Outside there’s a driveway, front and rear gardens with patio, shed and a small pond. The plot is described as decent and benefits from off‑street parking; the property is freehold and has a moderate Council Tax band D. Local amenities, bus links and direct routes to the M20 are close by, with several well‑rated primary and secondary schools within easy reach.
Practical points to note: the home is an average size (approx. 642 sq ft) and has an EPC rating of D. The conservatory is a pleasant light space but modest in size; the single shower room and standard ceiling heights reflect the property’s mid‑20th century proportions. The bungalow will suit buyers looking for a ready‑to‑move‑into bungalow with scope for modest updating rather than a full renovation.
This property will particularly appeal to those prioritising low‑maintenance, single‑level accommodation in a very affluent, low‑crime area. Buyers seeking modern open‑plan living or significant space should be aware of the bungalow’s compact footprint and typical period features.
2 bedroom semi-detached bungalow for sale in Howard Drive, Allington, Maidstone ME16 — £350,000 • 2 bed • 1 bath • 527 ft²
2 bedroom semi-detached bungalow for sale in Trevor Drive, Allington, Maidstone, Kent, ME16 — £350,000 • 2 bed • 1 bath • 943 ft²
2 bedroom semi-detached house for sale in Maidstone, Kent, ME16 — £395,000 • 2 bed • 1 bath • 623 ft²
2 bedroom semi-detached bungalow for sale in Beckenham Drive, Allington, Maidstone ME16 — £385,000 • 2 bed • 1 bath • 659 ft²
2 bedroom semi-detached bungalow for sale in Howard Drive, Allington, Maidstone ME16 — £400,000 • 2 bed • 1 bath • 876 ft²
3 bedroom detached bungalow for sale in Leonard Close, Allington ME16 — £475,000 • 3 bed • 1 bath • 851 ft²














































