**Standout Features:**
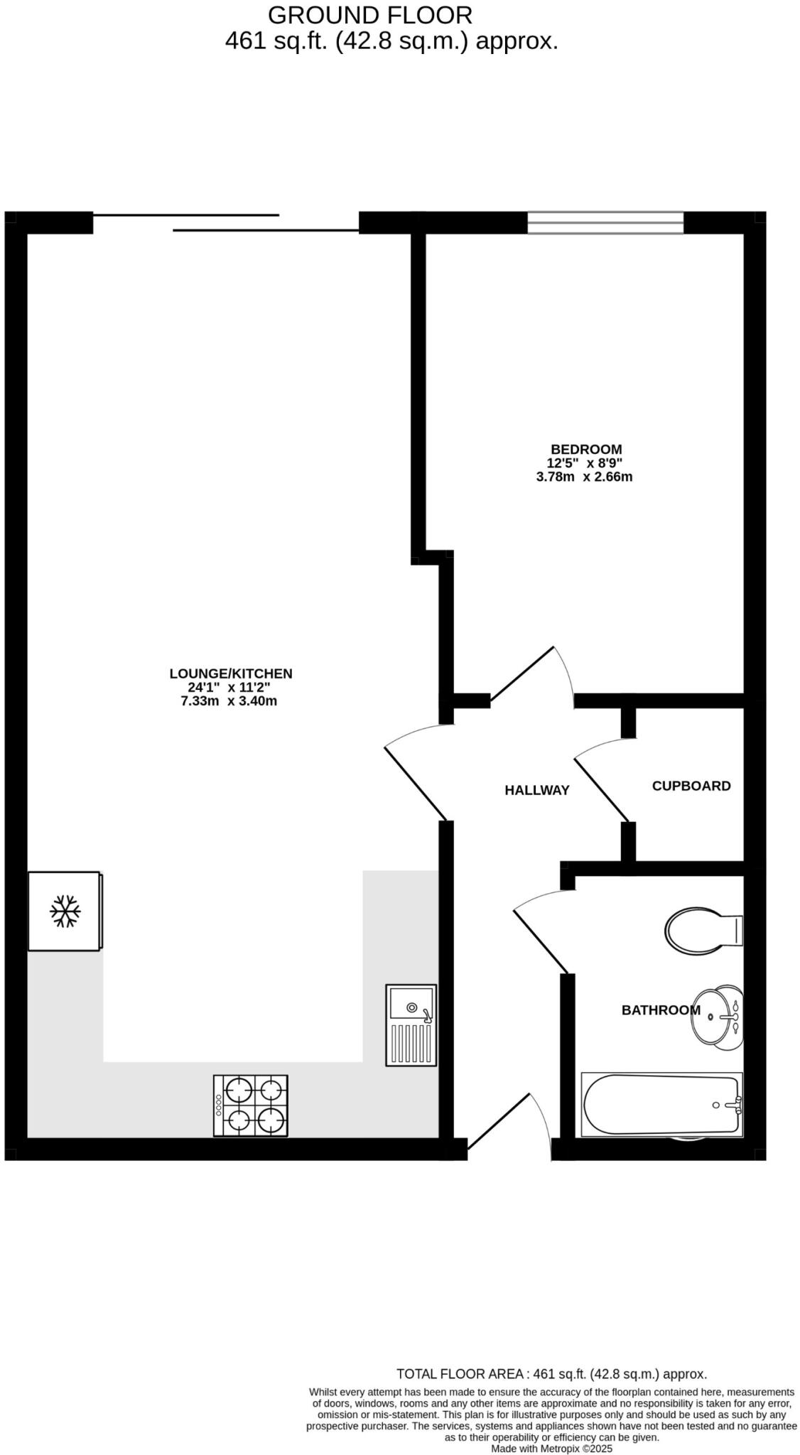
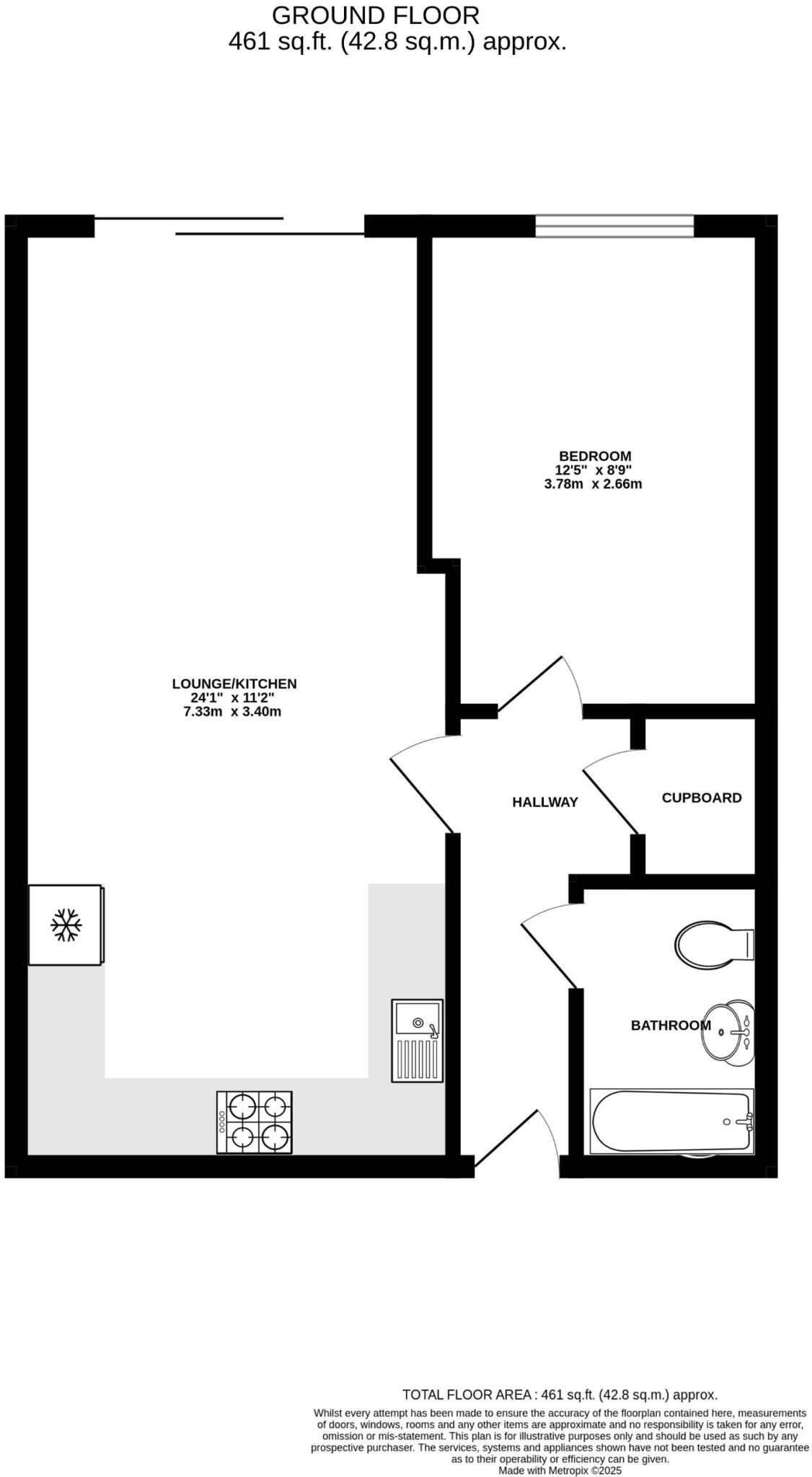
- Contemporary 1-bedroom apartment in a popular development
- Open plan kitchen/living room with integrated appliances
- Allocated off-street parking
- No onward chain – move in hassle-free
- Good transport links to Reading town center
- Modern fixtures with double glazing throughout
- Leasehold with 112 years remaining
**Summary:**
Step into comfortable urban living with this well-presented 1-bedroom flat, perfect for first-time buyers or investors seeking a rental opportunity. Nestled within a contemporary development, this light and airy apartment features a spacious open plan kitchen/living room, a double bedroom, and a sleek modern bathroom. Enjoy the luxury of allocated parking and excellent transport links that connect you effortlessly to Reading town centre.
Although the property is in good condition, it comes with a modest service charge of £849.50 per year and a ground rent of £195.50 annually. The EPC rating of B indicates efficient energy use, further enhancing its appeal. With popular schools nearby and a vibrant community atmosphere, this apartment offers exclusivity and security for young families and commuters alike. Act quickly, as properties like this are in high demand!
1 bedroom apartment for sale in Mead Close, Caversham, Reading, Berkshire, RG4 — £210,000 • 1 bed • 1 bath • 386 ft²
1 bedroom apartment for sale in Southcote Lane, Reading, Berkshire, RG30 — £220,000 • 1 bed • 1 bath • 495 ft²
1 bedroom apartment for sale in Skelton Court, Connaught Road, Reading, Berkshire, RG30 — £190,000 • 1 bed • 1 bath • 479 ft²
1 bedroom apartment for sale in Milford Road, Reading, Berkshire, RG1 — £245,000 • 1 bed • 1 bath • 455 ft²
2 bedroom flat for sale in Reading, Berkshire, RG30 — £280,000 • 2 bed • 2 bath • 745 ft²
1 bedroom apartment for sale in Ruskin, Henley Road, Caversham, Reading, RG4 — £190,000 • 1 bed • 1 bath • 514 ft²






























































