**Standout Features:**
- Grade II listed Sussex flint and brick cottage
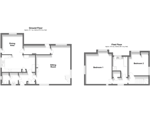
- 2 bedrooms, 2 reception rooms
- Spacious 1,453 sq. ft. layout with stunning downland views
- Brand new heating system being installed
- Expansive rear garden with mature planting, allotment, fruit trees, and additional paddock
- Off-street parking available
- No onward chain, making for a smooth transaction
**Potential Concerns:**
- Requires renovation throughout
- Listed status may present future renovation challenges
- High council tax and crime rate in the area
Nestled in the charming hamlet of Warningcamp, this Grade II listed cottage offers the perfect blend of historical charm and renovation potential. With two spacious reception rooms and a large kitchen, the home is ideal for those looking to create their dream countryside retreat. The breathtaking rear garden, complete with mature planting and an additional paddock, provides an exceptional outdoor space for gardening and gatherings, all while being surrounded by the natural beauty of the South Downs National Park.
This property is particularly appealing to investors or those looking for a unique project, as it offers the rare chance to make your mark on a period home in an enviable location. While it requires updating, the generous space and no onward chain present a rare opportunity for quick occupancy and immediate enjoyment. Just moments from the historic attractions of Arundel and a vibrant selection of local amenities, this cottage isn't just a home; it’s an invitation to embrace a serene, countryside lifestyle. Don’t miss out on your chance to own a piece of history in this idyllic setting. Act fast; opportunities like this won't last long!
3 bedroom detached house for sale in Warningcamp, Arundel, West Sussex, BN18 — £850,000 • 3 bed • 1 bath • 1109 ft²
2 bedroom barn conversion for sale in Warningcamp, Arundel, West Sussex, BN18 — £675,000 • 2 bed • 1 bath • 1492 ft²
2 bedroom semi-detached house for sale in Mill Road, Slindon Common, BN18 — £475,000 • 2 bed • 1 bath • 951 ft²
2 bedroom semi-detached house for sale in Mill Road, West Ashling, PO18 — £399,950 • 2 bed • 1 bath • 705 ft²
2 bedroom semi-detached house for sale in Steyning, BN44 — £475,000 • 2 bed • 1 bath • 1747 ft²
6 bedroom detached house for sale in North Bersted Street, West Sussex, PO22 — £750,000 • 6 bed • 1 bath • 4000 ft²














































































