Compact, low-maintenance ground-floor retirement flat with communal gardens and parking..
Ground-floor one-bedroom retirement apartment with westerly-facing patio
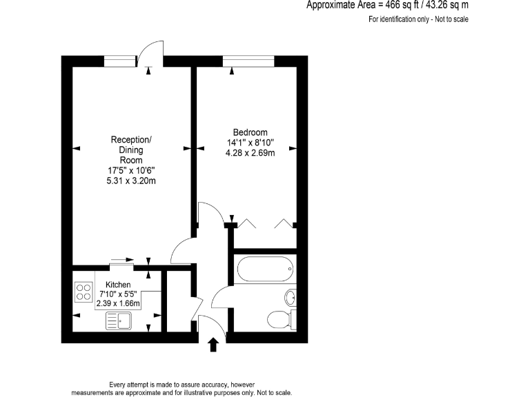
A ground-floor one-bedroom retirement apartment in Cedar Court, offered at £80,000. The flat opens to a westerly-facing patio and looks out over well-kept communal gardens, offering pleasant afternoon sun and an easy step-out for fresh air. The lounge leads to a compact kitchen; accommodation includes one double bedroom and a bathroom. At about 466 sq ft the layout is compact and practical for single occupants or couples seeking low-maintenance living.
Residents benefit from on-site communal facilities including a lounge for socialising, generous landscaped grounds and off-street parking. A direct cut-through leads to Addlestone town centre, placing shops, cafes and local amenities within easy walking distance. Mobile signal is excellent; broadband speeds are average and council tax is described as affordable for the area.
Important practical points: the property is leasehold and provides electric room heaters as the main heating source (no communal gas). The building was constructed around 2003–2006 and has double glazing installed after 2002. The local area records higher-than-average crime levels, which prospective buyers should factor into their decision.
This apartment suits downsizers or retirees who prioritise a low-upkeep home with communal social space and easy town access. The compact size and electric heating make it an economical, manageable option, though buyers should be comfortable with leasehold ownership and the local crime profile.
2 bedroom apartment for sale in Cedar Court (Addlestone), Addlestone, KT15 — £130,000 • 2 bed • 1 bath • 658 ft²
1 bedroom retirement property for sale in Crockford Park Road, Addlestone, KT15 — £107,500 • 1 bed • 1 bath • 485 ft²
2 bedroom retirement property for sale in Cedar Court, Addlestone, KT15 — £169,950 • 2 bed • 1 bath • 654 ft²
1 bedroom retirement property for sale in Cedar Court, Crockford Park Road, Addlestone, KT15 — £100,000 • 1 bed • 1 bath • 453 ft²
1 bedroom retirement property for sale in Oaktree Court, Addlestone Park, Addlestone, KT15 — £99,950 • 1 bed • 1 bath • 457 ft²
1 bedroom retirement property for sale in Cedar Court, Crockford Park Road, Addlestone, KT15 — £110,000 • 1 bed • 1 bath • 439 ft²


















































