**Standout Features:**
- No onward chain; vacant possession
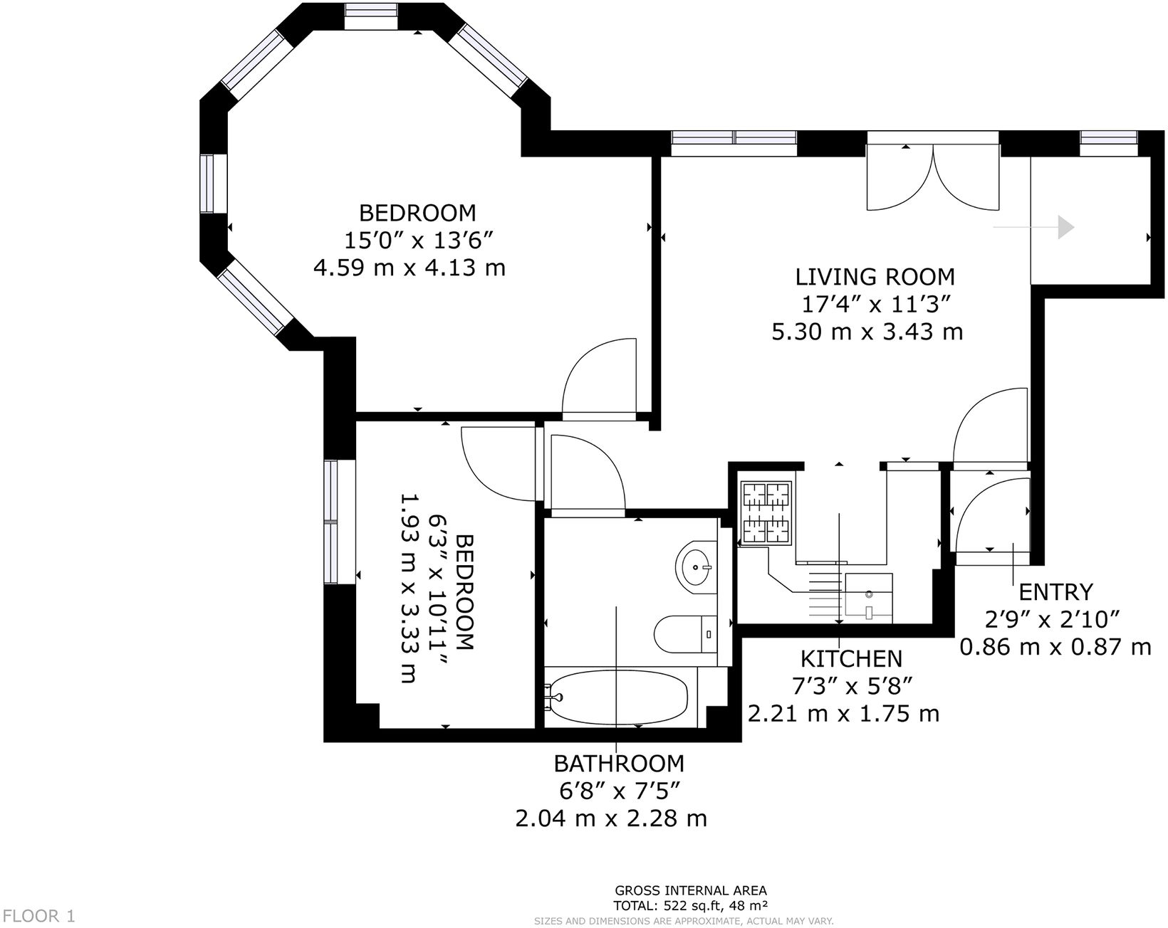
- First-floor, two-bedroom flat
- Located minutes from Cowley Road
- Bright, south-easterly facing living area
- Unique turret design in the spacious primary bedroom
- Share of freehold with 101 years remaining on the lease
- Excellent local amenities and schools nearby
**Property Overview:**
Discover this charming two-bedroom apartment in a quiet side street of East Oxford, distinctly positioned just a short stroll from the lively Cowley Road. Ideal for first-time buyers or investors, this well-presented flat offers modern living with no onward chain. The inviting entrance hall leads to a bright living space that benefits from an abundance of natural light, featuring a perfect nook for a home office.
The spacious primary bedroom showcases a unique turret design, adding character and ample living space. A second bedroom and a well-equipped kitchen that opens into the living area enhance this apartment's social atmosphere. The attractive layout is complemented by the convenience of a sizable family bathroom, making it an ideal choice for families or those looking for rental potential.
While it has modern features and an EPC rating of C, take note that the property does have a high crime rate typical of urban areas. With affordable council tax and a healthy service charge, this property promises not only comfort but also the potential for future enhancements in a vibrant, cosmopolitan neighborhood. Act quickly to seize this opportunity and envision your future in this delightful East Oxford flat!
2 bedroom flat for sale in Rectory Road, East Oxford, OX4 — £300,000 • 2 bed • 1 bath • 403 ft²
2 bedroom apartment for sale in Chapel Street, East Oxford, OX4 — £320,000 • 2 bed • 1 bath • 640 ft²
2 bedroom flat for sale in Cowley, East Oxford, OX4 — £330,000 • 2 bed • 2 bath • 581 ft²
2 bedroom flat for sale in Bennett Crescent, Oxford, OX4 — £275,000 • 2 bed • 1 bath • 564 ft²
2 bedroom flat for sale in Cowley, East Oxford, OX4 — £270,000 • 2 bed • 1 bath • 581 ft²
2 bedroom apartment for sale in Rowland Hill Court, Central Oxford, OX1 — £495,000 • 2 bed • 2 bath • 804 ft²






















































