Large garden, garage and solar-equipped home on Haverigg outskirts for easy single-storey living.
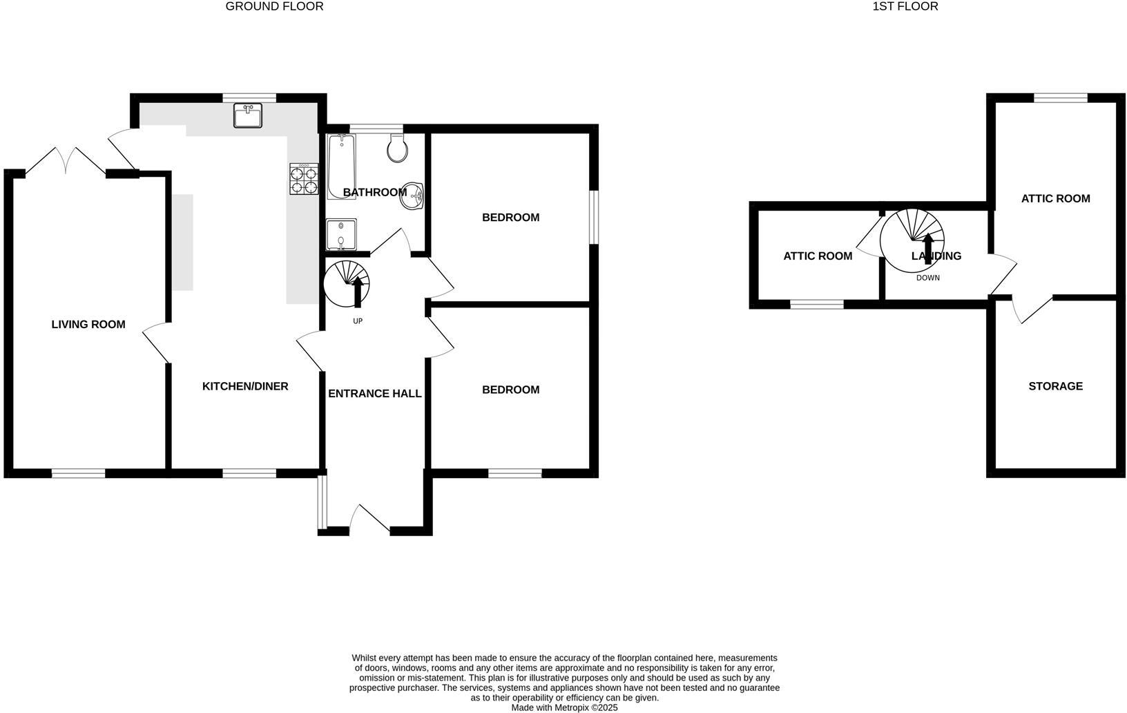
Detached two-bedroom bungalow with two attic rooms and large overall footprint
New uPVC double glazing, recently renovated throughout, EPC B
Solar panels reduce energy bills; mains gas boiler and radiators
Detached garage, private driveway and large rear garden with sun room
Spiral staircase to attic rooms; limited headroom and access considerations
Single family bathroom only; one-bathroom layout may limit larger households
Slow broadband in the area; local area classed as ageing with average deprivation
Very low local crime and close to Good-rated primary and secondary schools
Set on the peaceful outskirts of Haverigg, this detached two-bedroom bungalow combines modern presentation with unusually generous overall space. Recently renovated and fitted with new uPVC double glazing, the home benefits from solar panels, a modern bathroom, and an energy-efficient EPC B rating. A long living room and an expansive kitchen/diner create bright, flexible ground-floor living.
The property sits on a large corner plot with a detached single-bay garage, private driveway and a substantial rear garden with a sun room that has electricity—ideal for year-round use. Two attic rooms, accessed via a spiral staircase, offer flexible space for a home office, hobbies or guest accommodation, though headroom and access are more restricted than the ground floor.
Practical strengths include mains gas central heating, filled cavity walls, very low local crime and nearby primary and secondary schools rated Good. Drawbacks to note: broadband speeds in the area are slow, the property has a single family bathroom, and the spiral staircase and attic configuration may not suit those requiring level-access upstairs or extensive loft conversion without further work. The surrounding area is a small town fringe with an ageing local demographic and average area deprivation.
This bungalow will suit downsizers or buyers seeking single-storey living with extra versatile attic space, a large garden and low running costs from solar generation. It also offers scope for modest adaptation if buyers want to reconfigure attic rooms or improve connectivity and home working facilities.
4 bedroom semi-detached bungalow for sale in Poolside, Haverigg, Millom, LA18 — £340,000 • 4 bed • 2 bath • 1454 ft²
2 bedroom semi-detached bungalow for sale in Kentmere Crescent, Barrow-in-Furness, Cumbria, LA14 — £240,000 • 2 bed • 1 bath • 1041 ft²
3 bedroom semi-detached house for sale in Bank Head, Haverigg, Millom, LA18 — £185,000 • 3 bed • 1 bath • 905 ft²
3 bedroom detached house for sale in Incline Foot Bunglow, Kirkby-In-Furness, LA17 — £350,000 • 3 bed • 1 bath • 1463 ft²
3 bedroom detached house for sale in Skiddaw Gardens, BARROW-IN-FURNESS, LA14 — £249,950 • 3 bed • 1 bath • 1002 ft²
2 bedroom detached bungalow for sale in Churchill Drive, Millom, LA18 — £110,000 • 2 bed • 1 bath • 901 ft²






































































































































