PO16 9QW - 5 bedroom house for sale in Castle Street, Portchester, PO16

View on Property Piper

5 bedroom house for sale in Castle Street, Portchester, PO16

Summary - 209 CASTLE STREET PORTCHESTER FAREHAM PO16 9QW

5 bed 3 bath House

**Standout Features:**
- Five spacious double bedrooms including a master suite with en-suite bath and dressing area
- 32' dual aspect guest suite with views of Portchester Castle
- Modern fitted kitchen alongside a utility room
- Three generous reception rooms: a formal dining room, sitting room, and family room
- Integral garage/workshop and additional parking
- Enclosed walled garden featuring a summer house
- Grade II Listed property with historic charm, built in 1823
- Chain-free sale with no onward complications
- Desirable location near local amenities and transport links

**Summary:**
Discover 'Crown House', a remarkable Grade II Listed Georgian property perfectly positioned with picturesque views of Portchester Castle. This expansive family home boasts five double bedrooms, including a luxurious master suite, and multiple reception areas ideal for entertaining and family gatherings. Recent renovations showcase modern conveniences, while the character features are thoughtfully preserved, providing a warm and inviting atmosphere. The private garden with a summer house offers a serene retreat, and the integral garage provides practicality for storage or hobbies.

Situated in a sought-after neighborhood with easy access to local shops, schools, and transport links, this property is perfect for families or those seeking a peaceful lifestyle infused with history. With the added advantage of being chain-free, this is an opportunity not to be missed. Schedule a viewing today to fully appreciate the timeless elegance and potential that this home offers!

Property Details

Brochure Descriptions

Image Descriptions

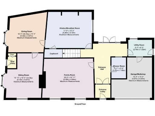
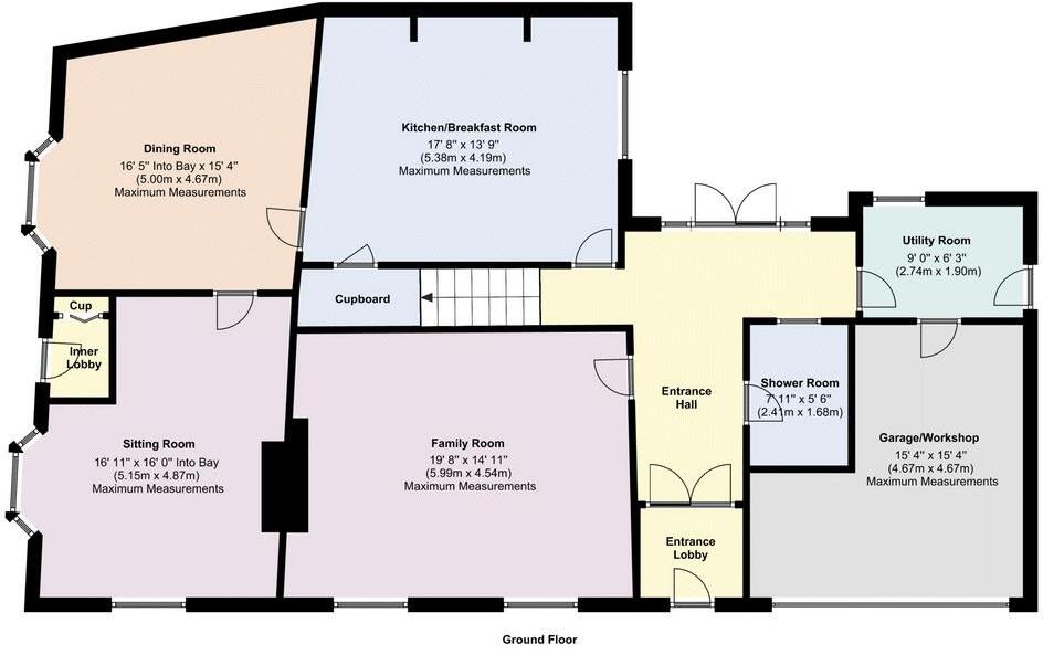
Floorplan Description

Rooms

Textual Property Features

Detected Visual Features

EPC Details

Nearby Schools

Nearest Bars And Restaurants

,,,,}

Nearest General Shops

,,}

Nearest Grocery shops

,,}

Nearest Supermarkets

,,}

Nearest Religious buildings

,,}

Nearest Medical buildings

,,,}

Nearest Airports

}

Nearest Leisure Facilities

,,,,}

Nearest Tourist attractions

,,}

Nearest Train stations

,,,,}

Nearest Bus stations and stops

,,,,}

Nearest Hotels

,,}

Tags

Local Market Stats

Similar Properties

Meta

High Res Images

Compatible Images

Low res Images

Thumbnails

Raw Images

High Res Floorplan Images

Compatible Floorplan Images

Low res Floorplan Images

FloorplanImages Thumbnail

Raw Floorplan Images