South-facing garden and gated parking for up to three cars.
Bay-front living room and main bedroom for extra light and space
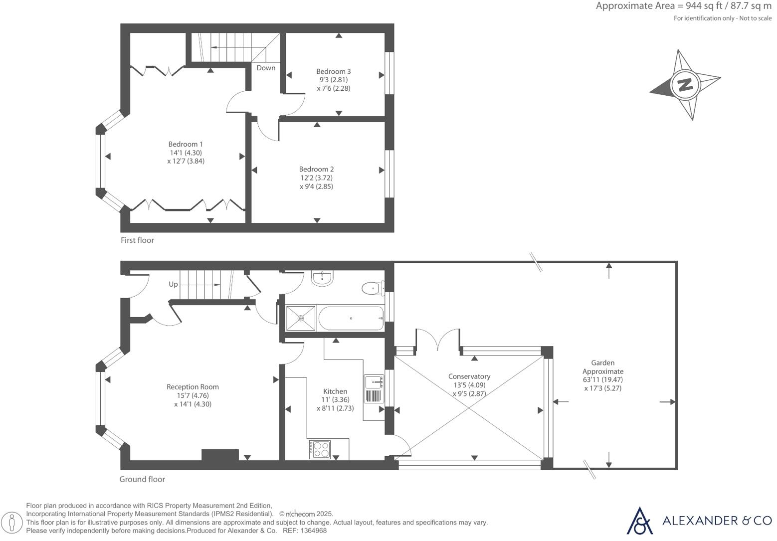
This bay-fronted, mid-20th-century terraced house offers a practical family layout across multiple levels. The ground floor features a bay-front lounge, a refitted kitchen and a bright 13ft conservatory that opens onto a south-facing garden — a comfortable spot for children and afternoon sun. A roomy four-piece bathroom on the ground floor and three first-floor bedrooms (main with bay window) suit a growing household.
Outside there is secure gated parking at the rear for up to three vehicles, plus a block-paved front area and timber shed in the garden. The property is freehold, has mains gas central heating and double glazing; it sits within easy reach of M1 junctions 11 and 11A, Luton & Dunstable Hospital, local shops and several primary and secondary schools rated Good.
The house is broadly average in size (c.944 sq ft) and presents sensible scope to modernise further. The construction era suggests solid brick walls with assumed limited insulation and the date of glazing installation is unknown; buyers should budget for potential improvement work such as insulation, updating services or cosmetic modernisation. There is also apparent scope to create a garage at the rear subject to checks and any necessary consents.
Overall this is a practical, well-located family home with secure parking and outdoor space, best suited to buyers seeking immediate utility with realistic plans for updating to increase comfort and long-term value.
2 bedroom terraced house for sale in Luton Road, Dunstable, Bedfordshire, LU5 — £290,000 • 2 bed • 1 bath • 734 ft²
3 bedroom semi-detached house for sale in Suncote Avenue, Dunstable, Bedfordshire, LU6 — £400,000 • 3 bed • 1 bath • 894 ft²
3 bedroom semi-detached house for sale in Newark Road, Luton, Bedfordshire, LU4 — £375,000 • 3 bed • 1 bath
3 bedroom end of terrace house for sale in Poynters Road, DUNSTABLE, LU5 — £350,000 • 3 bed • 2 bath • 1023 ft²
3 bedroom end of terrace house for sale in Douglas Crescent, Houghton Regis, Dunstable, Bedfordshire, LU5 — £365,000 • 3 bed • 1 bath • 874 ft²
3 bedroom terraced house for sale in Capron Road, DUNSTABLE, LU5 — £350,000 • 3 bed • 1 bath • 980 ft²














































































