Private plot with conversion potential near village amenities.
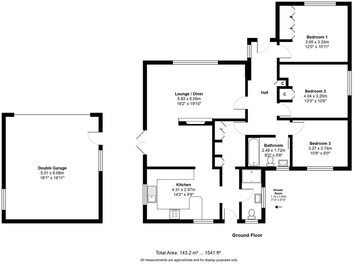
Detached three-bedroom bungalow on approx. 1/3 acre plot with wide frontage
Set well back from the lane in the hamlet of Belsize, this detached three-bedroom bungalow sits on a rare, generous plot of around one-third of an acre. The house offers comfortable single‑storey living with an L-shaped sitting/dining room, kitchen/breakfast room, two bathrooms and a detached double garage with light and power. The site is private, bordered by mature trees and backs onto paddock land opposite The Plough country pub.
The property is chain free and offers clear development potential: the neighbouring house has extended its roof and there is scope to add a first floor (subject to planning). The garage and footprint also present conversion opportunities for additional accommodation or home office space for those seeking flexible living or rental income potential.
The bungalow dates from 1953 and will benefit from updating throughout. Prospective buyers should factor in modernisation costs and that any first-floor extension will require planning consent. Note there is no mobile signal at the property, though broadband speeds are reported as fast. This makes the house well suited to buyers wanting a substantial, private plot with refurbishment and development upside in a very affluent, semi‑rural setting.
2 bedroom semi-detached bungalow for sale in Nuffield Farm, Flaunden Lane, HP3 — £895,000 • 2 bed • 1 bath
2 bedroom detached house for sale in Toms Lane, Kings Langley, WD4 — £670,000 • 2 bed • 1 bath • 1441 ft²
3 bedroom detached house for sale in Cow Roast, Tring, HP23 — £765,000 • 3 bed • 1 bath • 1686 ft²
3 bedroom detached bungalow for sale in Little Windmill Hill, Chipperfield, WD4 — £1,250,000 • 3 bed • 2 bath • 2073 ft²
3 bedroom detached bungalow for sale in Little Hill, Heronsgate, Chorleywood, WD3 — £795,000 • 3 bed • 1 bath • 981 ft²
3 bedroom bungalow for sale in Raffin Park, Datchworth, Hertfordshire, SG3 — £825,000 • 3 bed • 2 bath • 1957 ft²










































































