South-facing garden and walkable access to Benton Metro station.
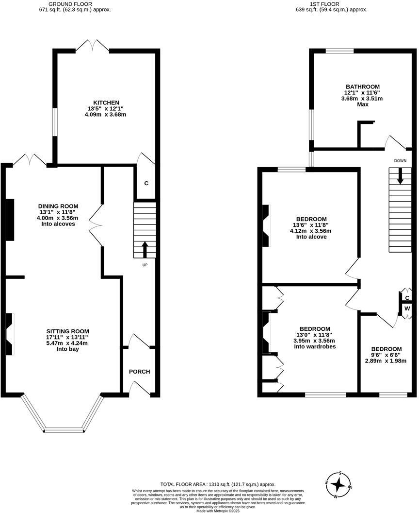
Three bedrooms across two storeys, spacious 1,310 sq ft
This well-presented three-bedroom semi-detached period home blends original character with recent stylish updating. High ceilings, bay windows and fireplaces sit alongside a contemporary kitchen with central island and a modern four-piece bathroom, offering comfortable family living across 1,310 sq ft.
Set on the south-facing side of Sandringham Avenue, the rear garden enjoys sunshine and low-maintenance landscaping. Benton Metro station, local shops and several highly rated primary and secondary schools are within easy reach, making the location particularly convenient for families and commuters.
Practical points are straightforward: the house is freehold, gas-heated with double glazing, and benefits from off-street parking. The rear plot is modest in size and there is a single family bathroom, so buyers seeking larger outdoor space or additional bathrooms should note limited scope without extension works. Overall, this is a stylish, move-in-ready family home in a comfortable, well-served neighbourhood.
3 bedroom terraced house for sale in Beech Grove, Benton, Newcastle upon Tyne, NE12 — £250,000 • 3 bed • 1 bath • 1333 ft²
3 bedroom semi-detached house for sale in Parkside Avenue, Newcastle upon Tyne, NE7 — £200,000 • 3 bed • 1 bath
3 bedroom semi-detached house for sale in Ashleigh Grove, Forest Hall, Newcastle Upon Tyne, NE12 — £189,950 • 3 bed • 1 bath • 957 ft²
3 bedroom terraced house for sale in Staithes Avenue, Benton, Newcastle upon Tyne, NE12 — £174,950 • 3 bed • 1 bath
3 bedroom semi-detached house for sale in Red Hall Drive, Newcastle Upon Tyne, NE7 — £295,000 • 3 bed • 1 bath • 1187 ft²
3 bedroom terraced house for sale in Doncaster Road, Sandyford, Newcastle Upon Tyne, NE2 — £230,000 • 3 bed • 2 bath • 1196 ft²






































































