Large 5-bed refurbishment project with planning consent and sweeping country views.
Five bedrooms including two first-floor bedroom suites
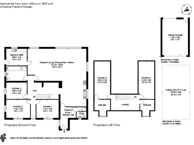
An attractive development and refurbishment opportunity set in a private rural location on the edge of Holbrook/Bromham, with wide views to Roundway Hill. The house has been partially converted to provide approximately 2,637–2,780 sq ft of accommodation including a huge open-plan kitchen/dining/sitting room and five bedrooms, arranged as three ground-floor rooms and two generous first-floor suites.
The property sits in a large plot with mature hedging, off-street parking and planning consent (ref 19/11396/FUL granted 20/09/2020) for extension and roof-space conversion. There is scope for a detached garage (consented) and further development potential subject to planning — appealing to buyers wanting to add value or finish the conversion to a bespoke standard.
Buyers should note the house needs renovation throughout: mechanical, decorative and fit-out work will be required to complete living spaces. Heating is oil-fired with boiler and radiators; EPC rating D (55). Services include mains water, electricity and drainage. Broadband is fibre to cabinet (circa 76/15 Mbps reported) though overall speeds are described as slow locally.
This location will suit families or buyers seeking rural space near Devizes (c.4 miles) with good local amenities, low crime and nearby schools. The setting offers privacy and striking countryside views, but the house requires investment to realise its full potential.
5 bedroom semi-detached house for sale in New Road, Bromham, Wiltshire, SN15 2JB, SN15 — £535,000 • 5 bed • 2 bath • 2566 ft²
Land for sale in St. Ediths Marsh, Bromham, Chippenham, Wiltshire, SN15 — £250,000 • 1 bed • 1 bath • 3000 ft²
3 bedroom detached house for sale in Westwood, BA15 — £375,000 • 3 bed • 1 bath • 1156 ft²
4 bedroom detached bungalow for sale in Bencroft Hill, Stanley, Chippenham, SN15 — £995,000 • 4 bed • 3 bath • 2045 ft²
5 bedroom detached house for sale in Holt, BA14 — £795,000 • 5 bed • 3 bath • 2076 ft²
3 bedroom detached bungalow for sale in Westbrook Green, Bromham, SN15 — £475,000 • 3 bed • 2 bath • 2016 ft²






































