**Standout Features:**
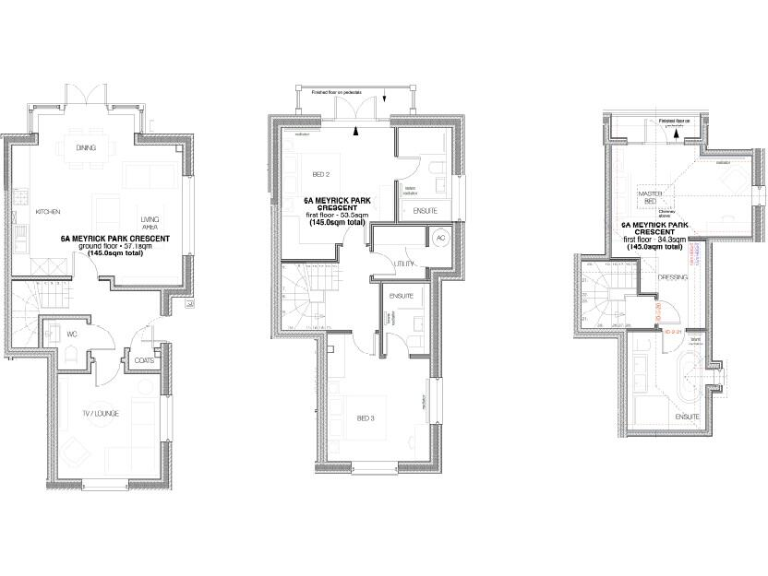
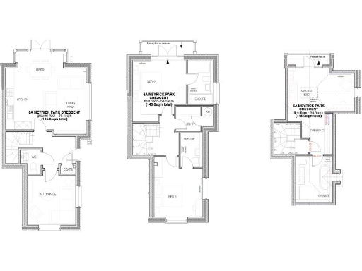
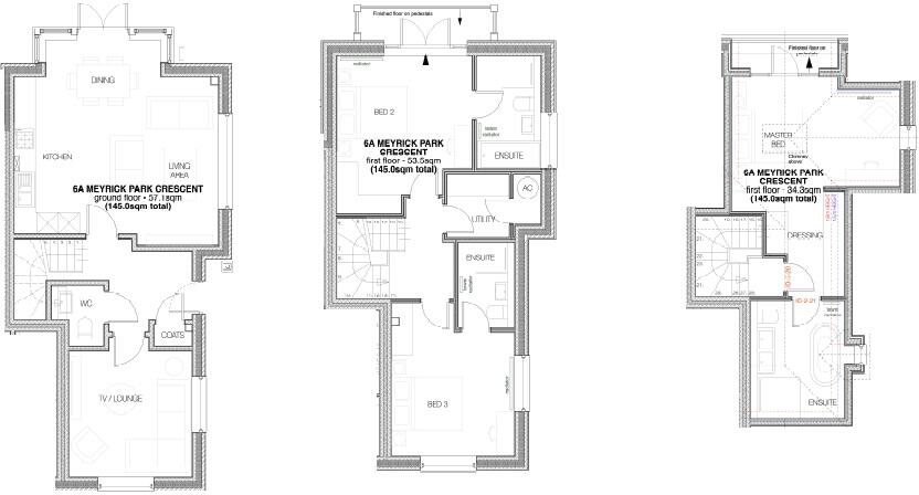
- Three double bedrooms and three bathrooms
- Spacious open-plan lounge, kitchen, and dining area
- Luxurious main suite with dressing room and balcony
- Large rear garden with patio, ideal for entertaining
- Two allocated parking spaces
- New build warranty for peace of mind
- Chain-free sale
**Notable Concerns:**
- Located in an area with a high crime rate
- Potential buyers should verify council tax rates and property specifications independently
Nestled in the prestigious Meyrick Park suburb of Bournemouth, this stunning semi-detached home offers a rare opportunity to enjoy luxurious, modern living in a highly sought-after location. With three spacious double bedrooms, including a master suite with a dressing room and a private balcony, this property is perfect for families seeking both comfort and style. The expansive open-plan ground floor is designed for versatile living, featuring a stylish kitchen with high-end integrated appliances and a generous living area that seamlessly opens to a large rear garden, creating the perfect space for entertaining or relaxation.
Residents will appreciate the proximity to the exclusive West Hants Club, providing excellent fitness and leisure facilities. This new build comes with a long warranty, ensuring you move in with absolute confidence. However, potential buyers should note the local area's high crime rate and verify council tax details. Don’t miss out on this unique offering; schedule your viewing today to secure your dream family home in an enviable location!
3 bedroom semi-detached house for sale in Meyrick Park, BH3 — £745,000 • 3 bed • 3 bath • 1192 ft²
3 bedroom semi-detached house for sale in Wimborne Road, Bournemouth, Dorset, BH10 7AE, BH10 — £450,000 • 3 bed • 3 bath • 1368 ft²
3 bedroom semi-detached house for sale in Meyrick Park Crescent, Bournemouth, Dorset, BH3 — £745,000 • 3 bed • 2 bath • 688 ft²
3 bedroom semi-detached house for sale in Meyrick Park Crescent, Bournemouth, Dorset, BH3 — £749,950 • 3 bed • 2 bath
2 bedroom semi-detached house for sale in Bournemouth, BH9 — £325,000 • 2 bed • 1 bath • 494 ft²
3 bedroom semi-detached house for sale in Ashley Cross, BH14 — £700,000 • 3 bed • 2 bath • 1474 ft²










































































