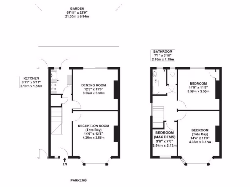
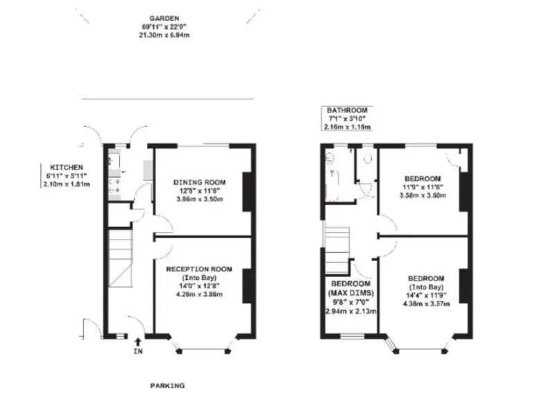
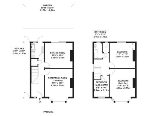
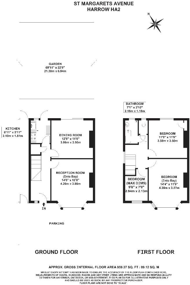
**Standout Features:**
- Freehold, semi-detached home with three bedrooms
- Average size (959 sq ft) with potential for a family or investment buyer
- Quiet area with very low crime and fast broadband
- Off-street parking and a rear garden
- Close proximity to South Harrow Underground Station (Piccadilly Line)
**Concerns:**
- Requires extensive modernization and renovation throughout
- Being sold via auction with a starting price of £380,000
This three-bedroom semi-detached house presents a unique opportunity for buyers seeking a renovation project in a desirable and multicultural neighborhood. With a charming mid-20th century exterior, this property is ready for your vision, featuring two reception rooms, a kitchen, and a total of seven rooms that can be transformed into your dream home. Enjoy the benefits of off-street parking and a decent-sized rear garden—perfect for family gatherings or relaxing outdoors.
Located just minutes from South Harrow Underground Station and surrounded by a wealth of local amenities—including shops, restaurants, and parks—this property is ideal for families or investors looking for rental potential. This probate sale is being offered at auction on May 13, making it a prime opportunity that won’t last long. The property’s careful assessment and future flexibility for refurbishment will surely attract those looking to make this house their own. Don't miss out on this chance; viewings are available in the weeks leading up to the auction!
3 bedroom terraced house for sale in Torbay Road, Harrow HA2 9QD, HA2 — £500,000 • 3 bed • 2 bath • 1334 ft²
3 bedroom semi-detached house for sale in Colchester Road, Northwood, Middlesex, HA6 1LX, HA6 — £550,000 • 3 bed • 1 bath • 1135 ft²
3 bedroom terraced house for sale in Scarsdale Road, Harrow, Middlesex HA2 — £500,000 • 3 bed • 1 bath • 1009 ft²
3 bedroom detached house for sale in 13 Pembroke Avenue, Harrow, Middlesex, HA3 8QG, HA3 — £425,000 • 3 bed • 1 bath
5 bedroom semi-detached house for sale in View Close, Harrow, HA1 — £660,000 • 5 bed • 2 bath • 1646 ft²
3 bedroom semi-detached house for sale in Shaftesbury Avenue, Harrow, HA2 — £600,000 • 3 bed • 1 bath • 1176 ft²






















































