ME16 0RB - 2 bedroom semidetached bungalow for sale in Newbury Avenue,…

View on Property Piper

2 bedroom semi-detached bungalow for sale in Newbury Avenue, Allington, Maidstone ME16

Summary - 36 Newbury Avenue,MAIDSTONE,ME16 0RB ME16 0RB

2 bed 1 bath Semi-Detached Bungalow

Refurbished two-bed bungalow with garage, garden and easy access to local amenities.
Bay-fronted reception room with fireplace
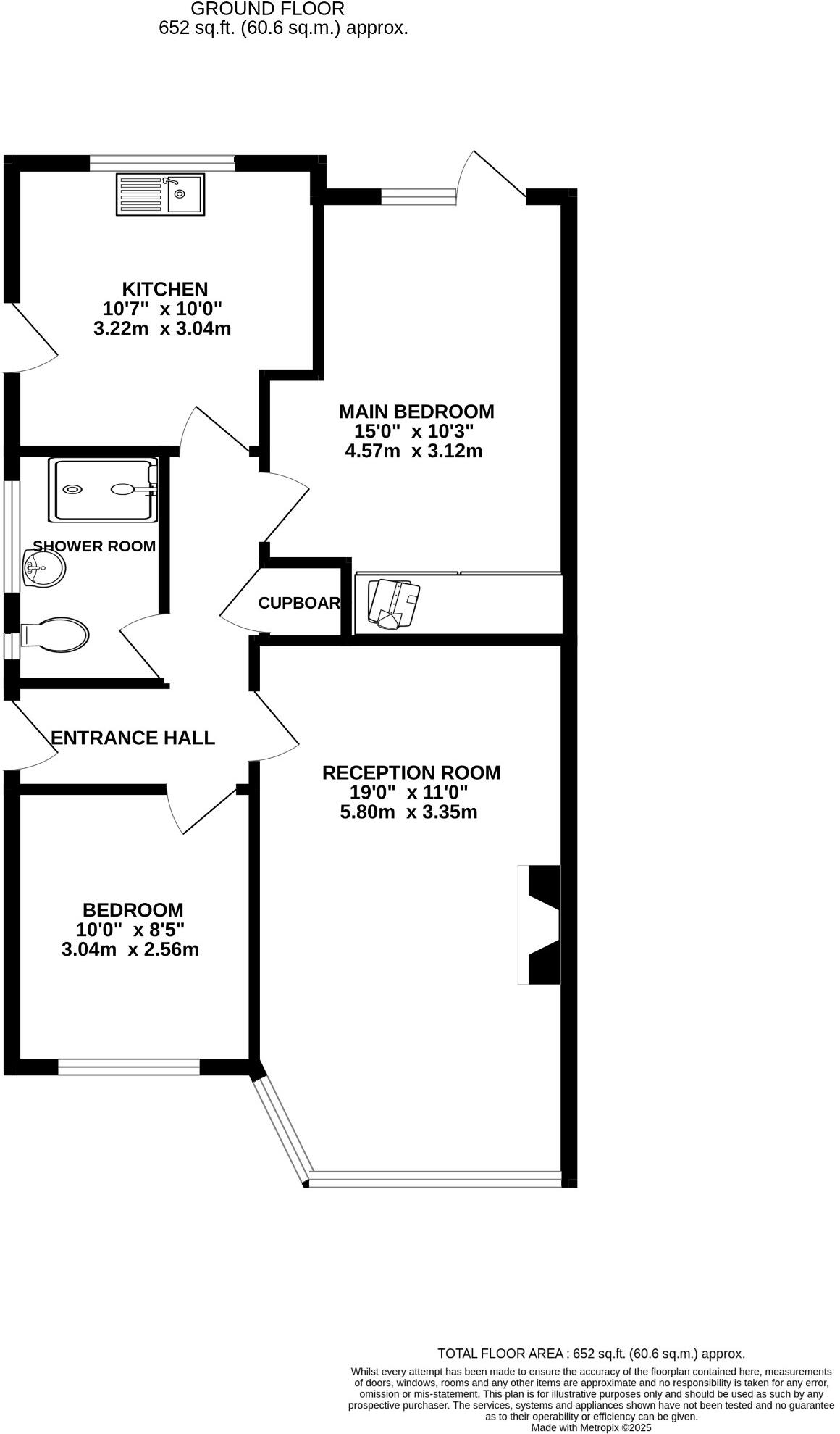
A well-presented, single-storey semi-detached bungalow offering easy, low-maintenance living in Allington. The bay-fronted reception room and two bedrooms provide comfortable accommodation across about 652 sq ft, while recent upgrades — a newly fitted kitchen, shower room and boiler — reduce short-term maintenance and add immediate practical value.

Outside, the property has a driveway, detached garage and front and rear lawns, giving straightforward parking and private outdoor space. The layout is traditional and sensible: an L-shaped entrance hall with loft access and a useful storage cupboard, a rear-facing main bedroom with wardrobes, and a kitchen/breakfast room with space for appliances and an integrated dishwasher.

Location is a key strength: convenient for local shops, transport links including the M20, and several well-rated schools (including two outstanding primary/secondary options nearby). Fast broadband and excellent mobile signal suit buyers who work from home or rely on digital connectivity.

Practical points to note: the bungalow is average-sized for the area, and while recently renovated, buyers should expect period features such as mid-20th-century joinery and a traditional fireplace — useful for character but not a modern open-plan layout. The neighbourhood is very affluent overall, though recorded local crime is above average, which some buyers will want to consider.

Property Details

Image Descriptions

Floorplan Description

Rooms

Textual Property Features

Target Audience

AI Tags

Detected Visual Features

Nearby Schools

Nearest Bars And Restaurants

,,,,}

Nearest General Shops

,,}

Nearest Grocery shops

,,}

Nearest Supermarkets

,,}

Nearest Religious buildings

,,}

Nearest Medical buildings

,,,}

Nearest Leisure Facilities

,,,,}

Nearest Tourist attractions

,,}

Nearest Train stations

,,,,}

Nearest Bus stations and stops

,,,,}

Nearest Hotels

,,}

Tags

Local Market Stats

Similar Properties

Meta

High Res Images

Compatible Images

Low res Images

Thumbnails

Raw Images

High Res Floorplan Images

Compatible Floorplan Images

Low res Floorplan Images

FloorplanImages Thumbnail

Raw Floorplan Images