Bright duplex apartment with private parking and well-kept communal gardens.
Chain free three-bedroom duplex penthouse with balcony seating area
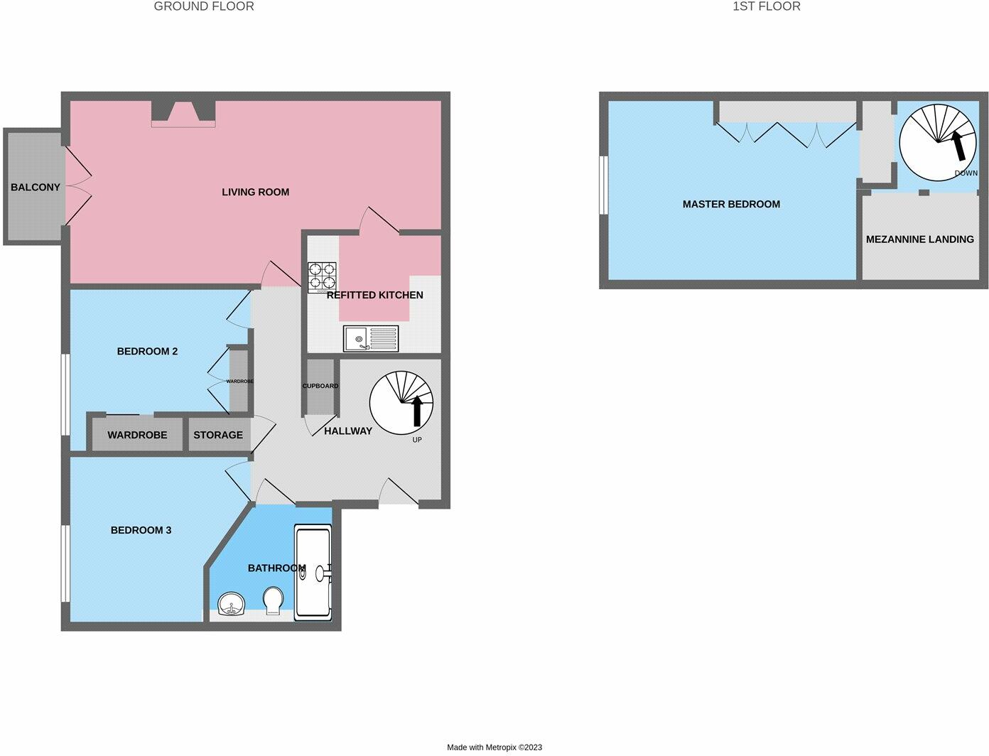
This spacious three-bedroom duplex penthouse in Magnolia Court offers bright, flexible living across two levels — ideal for families who want extra space without a house’s upkeep. The top-floor principal suite sits above the hallway on a mezzanine with a Velux window, while the ground floor provides two further bedrooms and a practical shower room. The living room opens through double doors onto a seating balcony that overlooks the well-kept communal gardens.
Practical strengths include a newly installed boiler (January 2023), double glazing throughout, off-street private car port parking and lift access to the upper floors. The development was built by reputable builders and benefits from landscaped communal grounds and secure entry with video intercom, making it low maintenance and family-friendly. Local schools are highly regarded and regular bus routes connect to the city centre.
Important facts to note: the property is leasehold with about 106 years remaining, a ground rent of £220 and a relatively high service charge of £2,032.79 per six months. There is just one shower room for three bedrooms, and the internal spiral staircase to the principal suite may not suit those with restricted mobility. Council tax is described as affordable and the area shows very low crime and excellent broadband and mobile coverage.
Offered chain free and presented in good order, this penthouse will suit buyers seeking a roomy, low-maintenance family home or a buy-to-let investor wanting a high-spec apartment in a sought-after Penn location. The layout and quality make the property ready to move into, while modest updating or reconfiguration could add further value.
2 bedroom apartment for sale in Flat 4 Magnolia Court, Muchall Road, Wolverhampton, WV4 — £190,000 • 2 bed • 1 bath • 810 ft²
2 bedroom apartment for sale in Muchall Road, Penn, WV4 — £195,000 • 2 bed • 1 bath • 1045 ft²
2 bedroom apartment for sale in Donington Grove, Oxley, Wolverhampton, WV10 — £140,000 • 2 bed • 2 bath • 420 ft²
2 bedroom flat for sale in Muchall Road, Wolverhampton, West Midlands, WV4 — £170,000 • 2 bed • 2 bath • 1030 ft²
2 bedroom apartment for sale in Pennant Court, Wolverhampton, WV3 — £110,000 • 2 bed • 2 bath • 617 ft²
2 bedroom apartment for sale in Penn Road, Penn, Wolverhampton, WV3 — £125,000 • 2 bed • 2 bath • 582 ft²










































































