**Standout Features:**
- Modern 1-bedroom apartment in a popular courtyard development
- Built in 2018, well-maintained with contemporary finishes
- Bright open-plan living area with south-facing windows
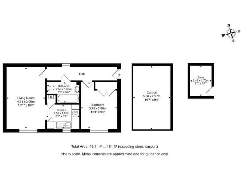
- Private covered parking space and additional external storage
- Low council tax and affordable service charges
- Located in the heart of Bridport, close to local amenities
This beautifully presented first-floor apartment offers a perfect blend of comfort and modern living in the vibrant heart of Bridport. Built in 2018, this stylish residence features an open-plan L-shaped kitchen, living, and dining area, awash with natural light from the south-facing windows and Velux skylight. With a spacious double bedroom equipped with built-in wardrobes and a modern bathroom, this property is ideal for first-time buyers or as a low-maintenance second home.
Enjoy the rarity of off-street covered parking and additional external storage, which enhances convenience in a central town setting. Bridport offers a rich community atmosphere replete with independent shops, diverse dining options, and excellent arts and cultural events. As a leasehold with an affordable service charge and low council tax, this property sits well within the budget for those aiming to invest in their future. Don’t miss out on securing this modern retreat – properties like this in such a desirable location don’t last long!































































