**Standout Features:**
- Grade II Listed cottage dating back to the 1700s
- Original features including exposed beams and brick walls
- Kitchen with integrated appliances and utility room with WC
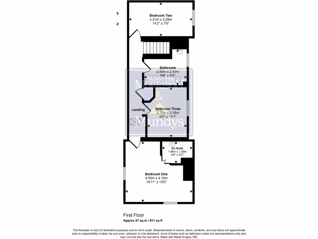
- Three spacious bedrooms, including a master with en-suite
- Garage with power and light
- Enclosed gravel garden, perfect for outdoor entertainment
- Fiber optic broadband available for high-speed internet
**Summary:**
Experience the charm of countryside living in this enchanting Grade II Listed cottage located in the picturesque village of Fiskerton, Southwell. This historic home showcases delightful original features, including rustic exposed beams, an inviting living room with a feature fireplace, and a kitchen diner adorned with an exposed brick wall. The well-proportioned accommodation boasts three comfortable bedrooms, including a master suite with en-suite facilities, making it perfect for families or those seeking a tranquil retreat.
The property's exterior features an enclosed gravel garden, ideal for outdoor dining and relaxation, alongside a garage providing additional storage or workspace. Conveniently situated within a short distance to local amenities, schools, and public transport, this home offers a unique blend of history and modern convenience. While renovations or extensions may be challenging due to its listed status, the potential for creating your dream cottage is still alive. Don’t miss your chance to own this character-filled gem—viewings are highly recommended!
2 bedroom cottage for sale in Main Street, Fiskerton, Southwell, NG25 — £230,000 • 2 bed • 1 bath • 1097 ft²
2 bedroom cottage for sale in Main Street, Fiskerton, Southwell, NG25 — £200,000 • 2 bed • 1 bath • 519 ft²
3 bedroom cottage for sale in Station Road, Fiskerton, Southwell, NG25 — £450,000 • 3 bed • 2 bath • 1399 ft²
3 bedroom cottage for sale in Church Street, Southwell, Nottinghamshire, NG25 0HQ, NG25 — £299,950 • 3 bed • 1 bath • 1127 ft²
4 bedroom detached house for sale in Longmead Drive, Fiskerton, Southwell, NG25 — £510,000 • 4 bed • 3 bath • 2100 ft²
3 bedroom terraced house for sale in Maythorne, Southwell, Nottinghamshire, NG25 — £325,000 • 3 bed • 2 bath • 1036 ft²














































































