Compact family home with open-plan kitchen and driveway parking.
Brand-new three-bedroom semi-detached modern home
A brand-new three-bedroom semi-detached home designed for a young family or first-time buyers seeking modern living and low-maintenance ownership. The open-plan kitchen/diner with French doors gives direct garden access and the separate living room offers a comfortable lounge space. Integrated appliances and contemporary finishes provide move-in-ready convenience.
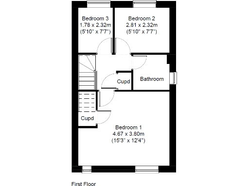
Bedroom one is notably spacious and benefits from fitted storage; the other two bedrooms share a single family bathroom. The third bedroom is compact and best suited for a child, nursery or home office. The property is freehold with driveway parking, a garden and fast broadband — practical for daily family life and remote working.
Be aware this home is small overall (approx. 343 sq ft) with only one bathroom, which may feel tight for larger families or frequent guests. Council tax banding will not be available until after occupation. On the positive side, low local crime, good nearby primary schools and a deposit-boost scheme for eligible buyers reduce barriers to purchase.
3 bedroom semi-detached house for sale in Fellows Close,
Weldon,
NN17 — £259,995 • 3 bed • 1 bath • 343 ft²
3 bedroom semi-detached house for sale in Fellows Close,
Weldon,
NN17 — £274,995 • 3 bed • 1 bath • 343 ft²
3 bedroom semi-detached house for sale in Fellows Close,
Weldon,
NN17 — £274,995 • 3 bed • 1 bath • 649 ft²
3 bedroom semi-detached house for sale in Fellows Close,
Weldon,
NN17 — £279,995 • 3 bed • 1 bath • 343 ft²
3 bedroom semi-detached house for sale in Fellows Close,
Weldon,
NN17 — £274,995 • 3 bed • 1 bath • 652 ft²
3 bedroom semi-detached house for sale in Silvester Road, Weldon, Corby, Northamptonshire, NN17 3LZ, NN17 — £235,000 • 3 bed • 2 bath • 718 ft²






















































































