Small Victorian one-bed requiring renovation—ideal for investors or DIY first buyers..
Low guide price offers strong entry point for investors or DIY buyers
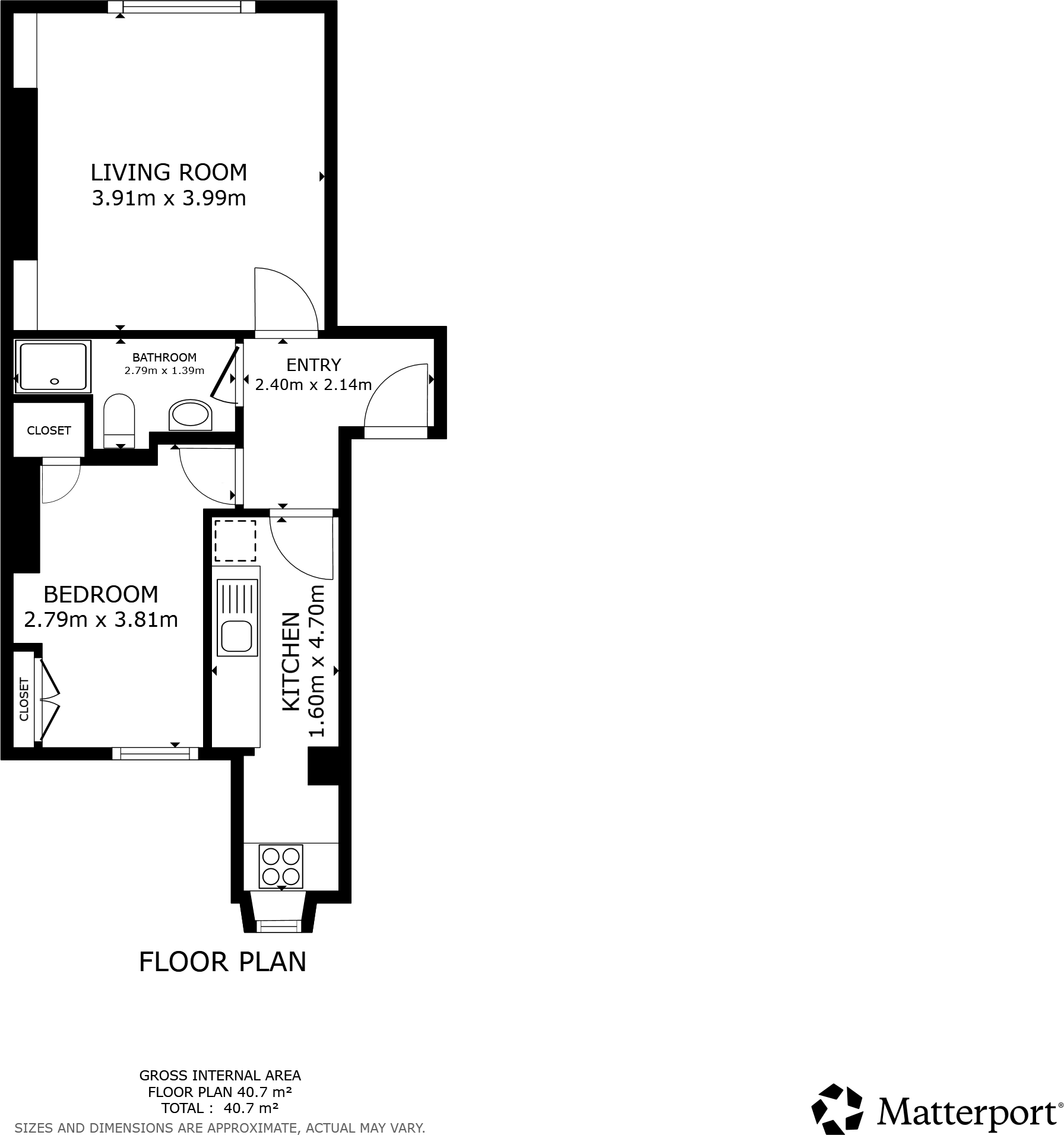
This compact one-bedroom apartment on Menzies Road is a low-entry investment or first-home opportunity in Torry, Aberdeen. At 431 sq ft and priced to reflect its condition, the flat requires full refurbishment — notably kitchen and bathroom — giving a buyer scope to add clear value.
Positioned in a mixed, cosmopolitan neighbourhood with strong rental demand from students and migrant families, the property benefits from off-street parking, a communal garden and excellent mobile and broadband connectivity. Its Victorian exterior and period terrace setting give solid curb appeal once internal works are complete.
Be frank about drawbacks: the flat is small, located in a very deprived area which can affect long-term resale, and needs renovation throughout. Investors should factor in refurbishment costs and letability assumptions; first-time buyers must assess renovation budget and local amenities.
This property suits a buyer looking to refurbish for rental yield or a budget conversion into a comfortable one-bed home. Viewings are essential to judge layout and scope for improvement — the potential is tangible for the right purchaser willing to renovate.
1 bedroom apartment for sale in Menzies Road,Torry, Aberdeen, AB11 — £25,000 • 1 bed • 1 bath • 318 ft²
1 bedroom flat for sale in 69, Menzies Road, Flat B, Aberdeen, AB119AR, AB11 — £30,000 • 1 bed • 1 bath
1 bedroom flat for sale in Third Floor Right, 16 Grampian Road, Aberdeen, Aberdeenshire, AB11 8DX, AB11 — £28,000 • 1 bed • 1 bath • 550 ft²
1 bedroom flat for sale in Flat A, 153 Victoria Road, Aberdeen, AB11 9NB, AB11 — £38,500 • 1 bed • 1 bath
1 bedroom flat for sale in 66, Menzies Road, Flat E, Torry, Aberdeen, AB119AQ, AB11 — £20,000 • 1 bed • 1 bath
1 bedroom apartment for sale in Urquhart Road, Aberdeen, AB24 — £40,000 • 1 bed • 1 bath • 409 ft²


































