Characterful three-bedroom cottage with garden, garages and coastal access.
- Detached period cottage with exposed beams and double-sided brick fireplace
- Two garages, additional outbuildings and driveway parking
- Charming manicured side garden, greenhouse and private seating area
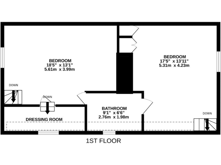
- Previously two cottages: two staircases and non-standard internal layout
- Single Jack-and-Jill bathroom serving three bedrooms
- Built before 1900 with solid brick walls; likely no wall insulation
- LPG boiler heating; services and appliances untested, no warranties
- Probate sale: must remain on market until contracts exchanged
Rose Cottage is a characterful detached village home that will appeal to buyers seeking original detail and outdoor space. The property retains exposed beams, a double-sided brick open fireplace and an original baker’s oven, giving immediate period charm. The plot includes two garages, outbuildings, a driveway and a neatly tended cottage garden—useful storage and parking for family life.
Internally the layout reflects its past as two cottages: there are two separate staircases and a Jack-and-Jill bathroom serving the two first-floor bedrooms. Room sizes and ceiling heights are generally modest, and one bedroom has a low-height dressing area with restricted headroom. Heating is by LPG boiler and radiators; services, appliances and the heating system have not been tested and no warranties can be given.
The location is a strong practical and lifestyle selling point. Shottisham is a close-knit village on the Bawdsey Peninsular with easy access to the Suffolk Heritage Coast, Woodbridge and local schools. Broadband speeds are average, mobile signal is absent, crime is very low and there is no flood risk.
Buyers should note this is a probate sale and must remain on the market until contracts exchange. The house is built before 1900 with solid brick walls and assumed lack of wall insulation, so prospective purchasers should be prepared to budget for improvement work (insulation, possible upgrades to services) if higher energy efficiency or modern standards are required.
4 bedroom detached house for sale in Lower Street, Ufford, WOODBRIDGE, IP13 — £690,000 • 4 bed • 3 bath • 2681 ft²
2 bedroom cottage for sale in Potash Corner, Clopton, IP13 — £260,000 • 2 bed • 1 bath • 700 ft²
2 bedroom cottage for sale in Cumberland Street, Woodbridge, IP12 — £340,000 • 2 bed • 1 bath • 797 ft²
3 bedroom semi-detached house for sale in Methersgate, Sutton, Woodbridge, Suffolk, IP12 — £675,000 • 3 bed • 2 bath • 1434 ft²
2 bedroom detached house for sale in Swan Lane, Westerfield, Ipswich, Suffolk, IP6 — £450,000 • 2 bed • 1 bath • 1150 ft²
4 bedroom semi-detached house for sale in Rendham, IP17 — £540,000 • 4 bed • 2 bath • 3261 ft²


















































































































