EH4 1SY - 2 bedroom flat for sale in 3/14 North Werber Park, Edinburg…

View on Property Piper

2 bedroom flat for sale in 3/14 North Werber Park, Edinburgh, EH4 1SY, EH4

Summary - 3/14, NORTH WERBER PARK, EDINBURGH EH4 1SY

2 bed 1 bath Flat

**Standout Features:**
- Modern flat within a popular residential complex
- Two spacious double bedrooms
- Contemporary open-plan living room with balcony access
- High-quality finishes and excellent decorative order
- Access to communal gardens and lockable storage space
- Off-street parking available with residents permits
- Convenient location near Stockbridge and Comely Bank, close to local amenities and schools

**Potential Concerns:**
- Relatively high service charge at approximately £2040/year
- Council tax considered on the expensive side
- Area classified as deprived, which may be a consideration for families

Experience urban living in this beautifully maintained modern flat located in North Werber Park, just north of Edinburgh city center. With two generous double bedrooms, a contemporary open-plan living area leading to a private balcony, plus a chic fully tiled shower room, this property is ideal for first-time buyers or investors looking for rental potential in a vibrant cosmopolitan neighborhood.

The development offers secure entry and is surrounded by inviting landscaped communal grounds, perfect for socializing or unwinding outdoors. Enjoy the convenience of off-street parking and the accessibility of local shops, parks, and transport links to the city. Although the area has a high council tax and service fees to consider, the stylish interiors and prime location present a rare opportunity in a sought-after community. Don't miss out on securing this desirable property in a bustling area with excellent connection potential—act quickly before it's gone!

Property Details

Brochure Descriptions

Image Descriptions

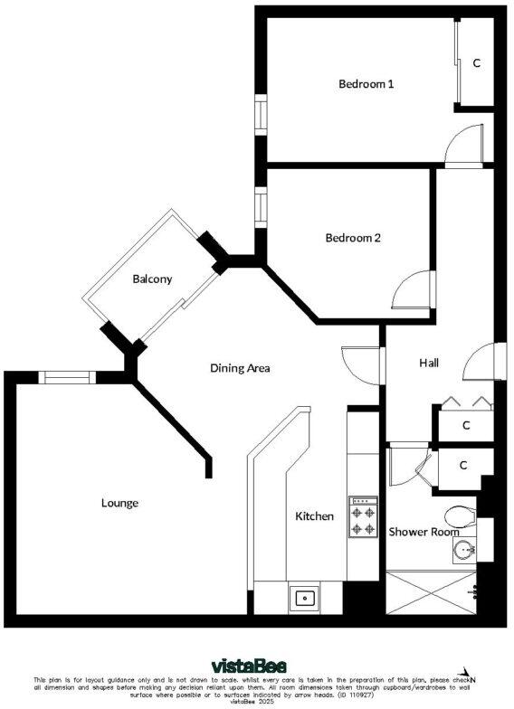
Floorplan Description

Rooms

Textual Property Features

Detected Visual Features

Nearest Bars And Restaurants

,,,,}

Nearest General Shops

,,}

Nearest Grocery shops

,,}

Nearest Supermarkets

,,}

Nearest Religious buildings

,,}

Nearest Medical buildings

,,,}

Nearest Airports

}

Nearest Leisure Facilities

,,,,}

Nearest Tourist attractions

,,}

Nearest Train stations

,,,,}

Nearest Bus stations and stops

,,,,}

Nearest Hotels

,,}

Tags

Local Market Stats

AirBnB Data

Similar Properties

Meta

High Res Images

Compatible Images

Low res Images

Thumbnails

Raw Images

High Res Floorplan Images

Compatible Floorplan Images

Low res Floorplan Images

FloorplanImages Thumbnail

Raw Floorplan Images