**Standout Features:**
- Newly built detached 4-bedroom family home
- Spacious living room with French doors to outdoor patios
- Modern kitchen/diner with integrated appliances and additional patio access
- En-suite bathroom in main bedroom and generous storage throughout
- Underfloor heating on the ground floor
- Front and rear gardens with landscaped patios and turfed areas
- Garage and driveway parking
- Prime location near Bodmin Moor with potential for scenic views
**Concise Property Summary:**
Discover this stylish 4-bedroom detached home in the sought-after development at Highfield Park, Bodmin. Designed with modern living in mind, this property boasts a spacious living room that seamlessly connects to outdoor patios, perfect for entertaining or family relaxation. The high-quality kitchen/diner features integrated appliances and flows effortlessly to a second patio, enhancing the home's allure. Enjoy the luxury of an en-suite in the master bedroom, complemented by three additional bedrooms offering ample space for family or guests.
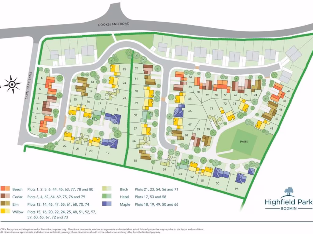
Set within a picturesque environment near Bodmin Moor, the property features generous front and rear gardens, providing an idyllic outdoor retreat. Parking is convenient with a garage and a spacious driveway. While the crime rate in the local area is above average, the affluent vibe and excellent mobile and broadband connectivity enhance its appeal. Seize the opportunity to own this exceptional home, ideally suited for families or first-time buyers, and explore the endless potential for personalization and a future extension. Don't miss out on the chance to make Plot 71 The Birch your own!
 4 bedroom detached house for sale in Plot 21 Highfield Park, Bodmin, Cornwall, PL31 — £370,500 • 4 bed • 2 bath • 1155 ft²
 4 bedroom detached house for sale in Plot 21 Highfield Park, Bodmin, Cornwall, PL31 — £370,500 • 4 bed • 2 bath • 1155 ft² 4 bedroom detached house for sale in Plot 53 Hazel, Highfield Park, Bodmin, PL31 — £380,000 • 4 bed • 2 bath • 1250 ft²
 4 bedroom detached house for sale in Plot 53 Hazel, Highfield Park, Bodmin, PL31 — £380,000 • 4 bed • 2 bath • 1250 ft² 4 bedroom detached house for sale in Plot 58 The Hazel, Highfield Park, Bodmin, PL31 — £380,000 • 4 bed • 2 bath • 1250 ft²
 4 bedroom detached house for sale in Plot 58 The Hazel, Highfield Park, Bodmin, PL31 — £380,000 • 4 bed • 2 bath • 1250 ft² 4 bedroom detached house for sale in Highfield Park, Bodmin, PL31 — £420,000 • 4 bed • 2 bath • 1250 ft²
 4 bedroom detached house for sale in Highfield Park, Bodmin, PL31 — £420,000 • 4 bed • 2 bath • 1250 ft² 3 bedroom detached house for sale in Plot 74 The Elm, Highfield Park, Bodmin, PL31 — £299,950 • 3 bed • 2 bath • 925 ft²
 3 bedroom detached house for sale in Plot 74 The Elm, Highfield Park, Bodmin, PL31 — £299,950 • 3 bed • 2 bath • 925 ft² 3 bedroom detached house for sale in Plot 61 The Elm, Highfield Park, Bodmin, PL31 — £330,000 • 3 bed • 2 bath • 925 ft²
 3 bedroom detached house for sale in Plot 61 The Elm, Highfield Park, Bodmin, PL31 — £330,000 • 3 bed • 2 bath • 925 ft²














































































































































































































