Convenient one-bed near Kingston station and riverside amenities.
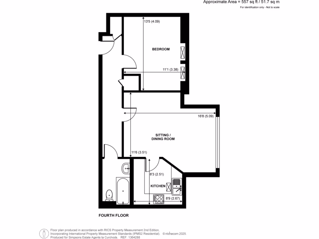
Top (fourth) floor with Velux rooflights and good natural light
Approximately 557–560 sq ft — compact, efficient one-bedroom layout
Loft storage access and built-in bedroom storage
Gated allocated parking (permit) and secure entry
Gas central heating with boiler and radiators; double glazing
Lease ~103 years remaining (as reported Sept 2025)
Service charge ~£1,900pa and ground rent ~£274pa
Located on busy high street; local crime levels reported as high
Bright top-floor one-bedroom apartment offering efficient, well-laid-out living close to Kingston town centre and the station. Set on the fourth floor, the flat benefits from Velux rooflights, good natural light and loft access for extra storage — practical for everyday city life or a rental let.
Practical features include gas central heating, double glazing and gated allocated parking (permit). The apartment’s compact footprint (around 557–560 sq ft) is arranged for comfortable single or couple occupancy, with an open living/dining room and a separate kitchen.
The lease term is long (about 103 years remaining as noted), but the property carries an annual service charge and ground rent and is in a busy high‑street setting. Crime levels are reported as high in the area, which may influence insurance or security choices. Overall, this is a convenient, well-maintained city apartment suited to first-time buyers or investors seeking good transport links and riverside amenities.
1 bedroom flat for sale in Kingsworthy Close, Kingston Upon Thames, KT1 — £285,000 • 1 bed • 1 bath • 450 ft²
1 bedroom apartment for sale in Albany Park Road, Kingston Upon Thames, KT2 — £350,000 • 1 bed • 1 bath • 495 ft²
1 bedroom apartment for sale in Skerne Road, Kingston Upon Thames, KT2 — £365,000 • 1 bed • 1 bath • 539 ft²
1 bedroom flat for sale in 32 Richmond Road, Kingston Upon Thames, KT2 — £275,000 • 1 bed • 1 bath • 388 ft²
1 bedroom flat for sale in Kingsworthy Close, Kingston upon Thames, KT1 — £275,000 • 1 bed • 1 bath • 484 ft²
1 bedroom apartment for sale in Kingston, KT2 — £249,950 • 1 bed • 1 bath • 383 ft²














































