Classic period living moments from Sloane Square and the King’s Road.
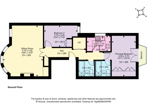
700 sq ft two-bedroom flat with traditional layout and high ceilings
Share of freehold provides long-term management control
Lift access to the second floor for easier day-to-day living
Prime Chelsea location — 0.3 miles from Sloane Square underground
Service charge about £3,500 per year; council tax described as quite expensive
Lease length 88 years remaining — affects mortgageability and costs
Solid brick construction; likely no cavity insulation, retrofit may be needed
Double glazing present but installation date unknown
Set on the second floor of a well-kept Victorian mansion block, this two-bedroom flat offers classic Chelsea character with practical urban living. High ceilings and bay-windowed façades bring generous natural light to an average-sized, well-laid-out 700 sq ft apartment. Lift access and a share of the freehold add everyday convenience and long-term control.
The location is the principal strength: tree-lined Draycott Avenue sits moments from the King’s Road and 0.3 miles from Sloane Square underground (Circle and District lines). Local amenities include high-end shops, cafés and outstanding primary schools nearby, making the area desirable for a range of buyers seeking central Chelsea living.
Buyers should note material running costs and tenure details. The lease has 88 years remaining and the service charge is around £3,500 per year; council tax is described as quite expensive. The building is solid brick and likely lacks cavity insulation, and double glazing installation dates are unknown, so buyers seeking high thermal efficiency may want to budget for improvements.
This apartment suits someone wanting a characterful, centrally located Chelsea base with good communal management and the benefits of a share of freehold. It will particularly appeal to buyers prioritising location and period charm, while those prioritising low running costs or easy mortgageability should factor in lease length and potential retrofit works.
2 bedroom flat for sale in Draycott Place, London, SW3 — £1,350,000 • 2 bed • 2 bath • 879 ft²
3 bedroom flat for sale in Draycott Place, London, SW3 — £1,850,000 • 3 bed • 2 bath • 1039 ft²
2 bedroom apartment for sale in Draycott Place, London, SW3 — £2,500,000 • 2 bed • 2 bath • 893 ft²
3 bedroom apartment for sale in Draycott Place, London, SW3 — £2,300,000 • 3 bed • 3 bath • 1729 ft²
3 bedroom flat for sale in Cadogan Court, Draycott Avenue, London, SW3 — £3,850,000 • 3 bed • 2 bath • 1582 ft²
2 bedroom apartment for sale in Draycott Place, Chelsea, London, SW3 — £895,000 • 2 bed • 2 bath • 659 ft²


















































































