Low-maintenance two-bed in vibrant Mill Road, close to station and city.
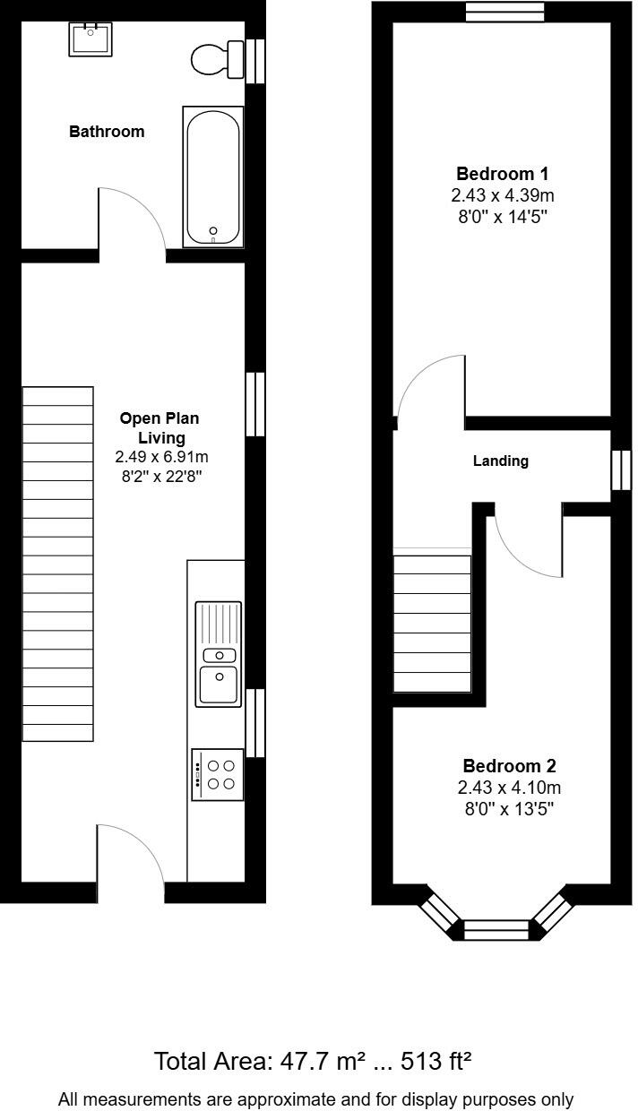
Compact 513 sq ft Victorian semi with period bay window
A compact two-bedroom Victorian semi in the heart of Mill Road, ideal for first-time buyers or professionals seeking a low-maintenance city base. The ground floor's open-plan living and modern fitted kitchen run the full depth of the house, maximising usable space and natural light. A private driveway and established right of way add useful off-street parking in a central location.
Upstairs offers two bedrooms — the front room with a bay window and the rear room comfortably accommodating a double bed — plus a bright three-piece bathroom. The property benefits from modern integrated appliances, a current electrical safety certificate and very low council tax, making running costs modest.
Mill Road is vibrant and well served by independent shops, cafes and easy walking access to Cambridge Station, the city centre and Parker’s Piece. Significant local regeneration and planned innovation hubs nearby enhance long-term appeal and rental/ resale potential.
Note the home is small (approximately 513 sq ft) with a single bathroom and sits in a cosmopolitan student and professional neighbourhood where evening activity and higher local crime statistics should be considered. Any rooftop terrace or additional floor would require planning consent before works proceed.
3 bedroom terraced house for sale in City Road, Cambridge, CB1 — £500,000 • 3 bed • 1 bath • 829 ft²
2 bedroom end of terrace house for sale in Mill Road, Cambridge, CB1 — £525,000 • 2 bed • 2 bath • 964 ft²
3 bedroom property for sale in Mill Road, Cambridge, CB1 — £535,000 • 3 bed • 2 bath • 1087 ft²
2 bedroom terraced house for sale in Newmarket Road, Cambridge, CB5 — £325,000 • 2 bed • 1 bath • 626 ft²
2 bedroom terraced house for sale in Cyprus Road, Cambridge, CB1 — £525,000 • 2 bed • 1 bath • 956 ft²
2 bedroom terraced house for sale in Mill Road, Cambridge, CB1 — £500,000 • 2 bed • 1 bath • 1022 ft²






























