Three-bedroom link detached with garage, gardens and excellent transport and school links.
No onward chain — ready for a quick sale
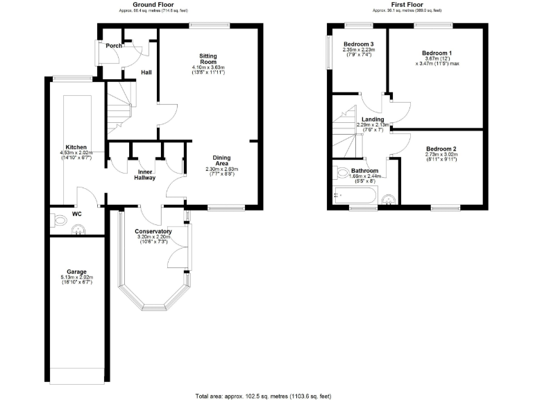
Set on Hillhead Parkway in Chapel House, this three-bedroom link-detached house offers a practical family layout across approximately 1,044 sq.ft. The property is offered with no onward chain, a single garage, driveway and enclosed front and rear gardens — useful for parking and outdoor play. Located close to good schools, local amenities and major road links (A1/A69), it suits families needing straightforward access across Newcastle and beyond.
On the ground floor a lounge/diner, conservatory and modern-style kitchen provide flexible living space; upstairs are three generous bedrooms and a family bathroom with shower over bath. The master bedroom benefits from fitted wardrobes for storage. The layout and plot size give scope to update or extend, subject to permissions, for buyers seeking added value or extra living space.
Important practical points are clear: the EPC rating is D and the double glazing was installed before 2002. The house dates from the 1950s and the cavity walls are assumed to have no insulation, so further energy-efficiency improvements may be needed. There is one bathroom only and buyers should allow for modernization costs where desired.
Overall this is a well-located, mid-century family property in a quiet, low-crime suburban area. It will appeal to purchasers looking for immediate occupation with potential to improve energy performance and interior finishes over time.
3 bedroom detached house for sale in Hillhead Parkway, Chapel House, NE5 — £219,995 • 3 bed • 1 bath
3 bedroom semi-detached house for sale in Ashdale Crescent, Chapel House, Newcastle Upon Tyne, NE5 — £230,000 • 3 bed • 1 bath • 1249 ft²
3 bedroom semi-detached house for sale in Chadderton Drive, Newcastle upon Tyne, Tyne and Wear, NE5 — £230,000 • 3 bed • 2 bath • 1194 ft²
4 bedroom detached house for sale in The Chesters, Newcastle upon Tyne, Tyne and Wear, NE5 — £340,000 • 4 bed • 1 bath • 1280 ft²
5 bedroom semi-detached house for sale in Glebe Close, Chapel Park, Newcastle Upon Tyne, NE5 — £299,950 • 5 bed • 1 bath • 1270 ft²
3 bedroom terraced house for sale in Kings Walk, Chapel Park, NE5 — £200,000 • 3 bed • 1 bath • 886 ft²


































































































