Large family home with garage, secluded garden and no onward chain.
Detached chalet bungalow on a large secluded plot
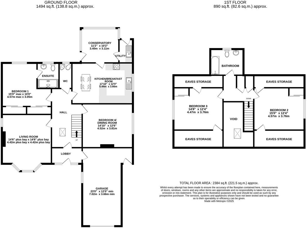
A spacious detached chalet bungalow set in a secluded tucked-away position on the outskirts of Whitehaven. Built in 2006, the house offers generous rooms, a galleried reception hall and flexible living space ideal for families wanting long-term comfort and room to grow. The plot is notably large with a secluded rear garden, orchard area and plenty of off-street parking plus an oversized single garage.
Accommodation is versatile: ground-floor principal bedroom with en-suite, large double-aspect living room with bay window, open-plan kitchen/dining area with conservatory, an additional reception room (potential fourth bedroom) and cloakroom. Two further double bedrooms and a family bathroom occupy the first floor, with extensive eaves storage off the landing. The overall footprint and 2,108 sq.ft internal area make this a roomy, adaptable home.
Practical strengths include freehold tenure, no onward chain, fast broadband and low local crime. The property will benefit from some internal modernisation to maximise value — the interior appears sound but dated in places and would suit buyers prepared to update finishes. The location is quiet and private, but sits on the outskirts of town within an area described as relatively deprived; consider travel links and local services when viewing.
For families seeking long-term ownership, the house offers space, privacy and scope to personalise over time. Energy performance is TBC and buyers should note there is no flood risk recorded. Viewings are recommended to appreciate room proportions, garden privacy and the potential to add your own mark.
3 bedroom detached bungalow for sale in Loop Road North, Whitehaven, CA28 — £295,000 • 3 bed • 1 bath • 1292 ft²
3 bedroom detached bungalow for sale in Egremont Road, Hensingham, CA28 — £260,000 • 3 bed • 2 bath • 1251 ft²
5 bedroom detached bungalow for sale in Summergrove Park, Whitehaven, CA28 — £470,000 • 5 bed • 4 bath • 3408 ft²
2 bedroom detached bungalow for sale in Winston Drive, Hensingham, Whitehaven, CA28 — £275,000 • 2 bed • 1 bath • 1388 ft²
2 bedroom detached bungalow for sale in Hawk Place, Moresby Parks, Whitehaven, CA28 — £215,000 • 2 bed • 1 bath • 745 ft²
4 bedroom detached bungalow for sale in Standings Rise, Whitehaven, CA28 — £390,000 • 4 bed • 3 bath • 1679 ft²










































































