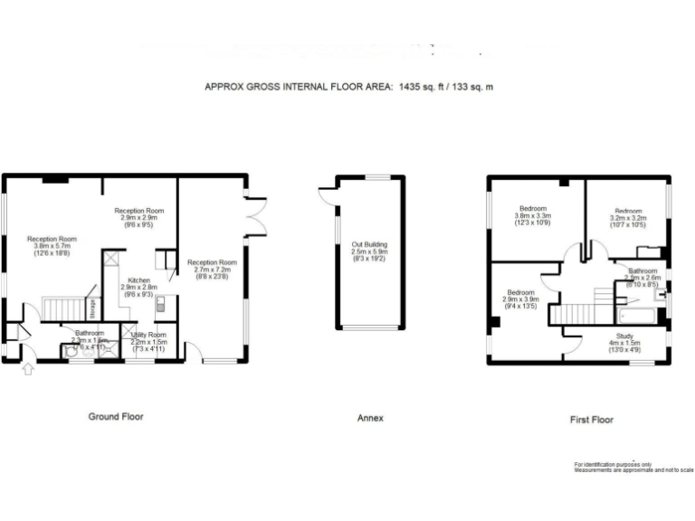
**Standout Features:**
- 4 bedrooms (three doubles and a flexible fourth room)
- Potential for extension (subject to planning consent)
- Generous corner plot with stunning wrap-around gardens
- Bright open-plan living areas with oak flooring
- Brick-built garage suitable for a home office or studio
- Convenient location near shops, schools, and public transportation
**Notable Concerns:**
- Requires some general maintenance
- Possible need for planning approvals for any renovation
Nestled in a desirable corner plot on Morland Way, this spacious 4-bedroom semi-detached house offers flexible living in a family-friendly environment. The generous open-plan sitting room, dining area, and impressive family room feature beautiful oak flooring and offer an abundance of natural light, perfect for both everyday living and entertaining. The modern kitchen/breakfast room, a separate laundry room, and a convenient ground floor wet room enhance functionality, making it an ideal choice for families.
Outside, the stunning wrap-around garden allows plenty of space for outdoor activities, with areas designed for low maintenance and a serene atmosphere enhanced by mature plants. The versatile garage presents the perfect opportunity for a home office or studio, with a separate entrance and parking.
Located within walking distance to reputable schools, shops, and a railway station, this home ensures convenience at every turn. With a blend of charm, comfort, and potential for expansion, this property is an opportunity not to be missed—transform it into your dream family space! Act quickly; properties with such potential in this sought-after location won't last long!
 4 bedroom detached house for sale in Old Nazeing Road, Broxbourne, Hertfordshire, EN10 — £900,000 • 4 bed • 2 bath • 2056 ft²
 4 bedroom detached house for sale in Old Nazeing Road, Broxbourne, Hertfordshire, EN10 — £900,000 • 4 bed • 2 bath • 2056 ft² 4 bedroom detached house for sale in Knightsfield, Welwyn Garden City, AL8 — £850,000 • 4 bed • 3 bath • 1940 ft²
 4 bedroom detached house for sale in Knightsfield, Welwyn Garden City, AL8 — £850,000 • 4 bed • 3 bath • 1940 ft² 4 bedroom semi-detached house for sale in North Barn, Broxbourne, Hertfordshire, EN10 — £595,000 • 4 bed • 1 bath • 893 ft²
 4 bedroom semi-detached house for sale in North Barn, Broxbourne, Hertfordshire, EN10 — £595,000 • 4 bed • 1 bath • 893 ft² 5 bedroom semi-detached house for sale in Endlebury Road, North Chingford, E4 — £900,000 • 5 bed • 1 bath • 1736 ft²
 5 bedroom semi-detached house for sale in Endlebury Road, North Chingford, E4 — £900,000 • 5 bed • 1 bath • 1736 ft² 5 bedroom semi-detached house for sale in Mangrove Road, Hertford, SG13 — £1,195,000 • 5 bed • 3 bath • 2300 ft²
 5 bedroom semi-detached house for sale in Mangrove Road, Hertford, SG13 — £1,195,000 • 5 bed • 3 bath • 2300 ft² 2 bedroom semi-detached house for sale in Hillside, Harlow, CM17 — £375,000 • 2 bed • 2 bath • 978 ft²
 2 bedroom semi-detached house for sale in Hillside, Harlow, CM17 — £375,000 • 2 bed • 2 bath • 978 ft²


























































































































