Three-bedroom period semi, walking distance to East Croydon — ready to update and personalise..
Chain free three-bedroom semi-detached freehold
Short walk to East Croydon station and town centre
West-facing private garden, small plot
Front garden could be converted to off-street parking (STPP)
One bathroom plus separate WC; potential to combine
Built 1930–1949 with solid brick walls, likely no wall insulation
Dated interior throughout—scope and cost for refurbishment
Local crime level above average
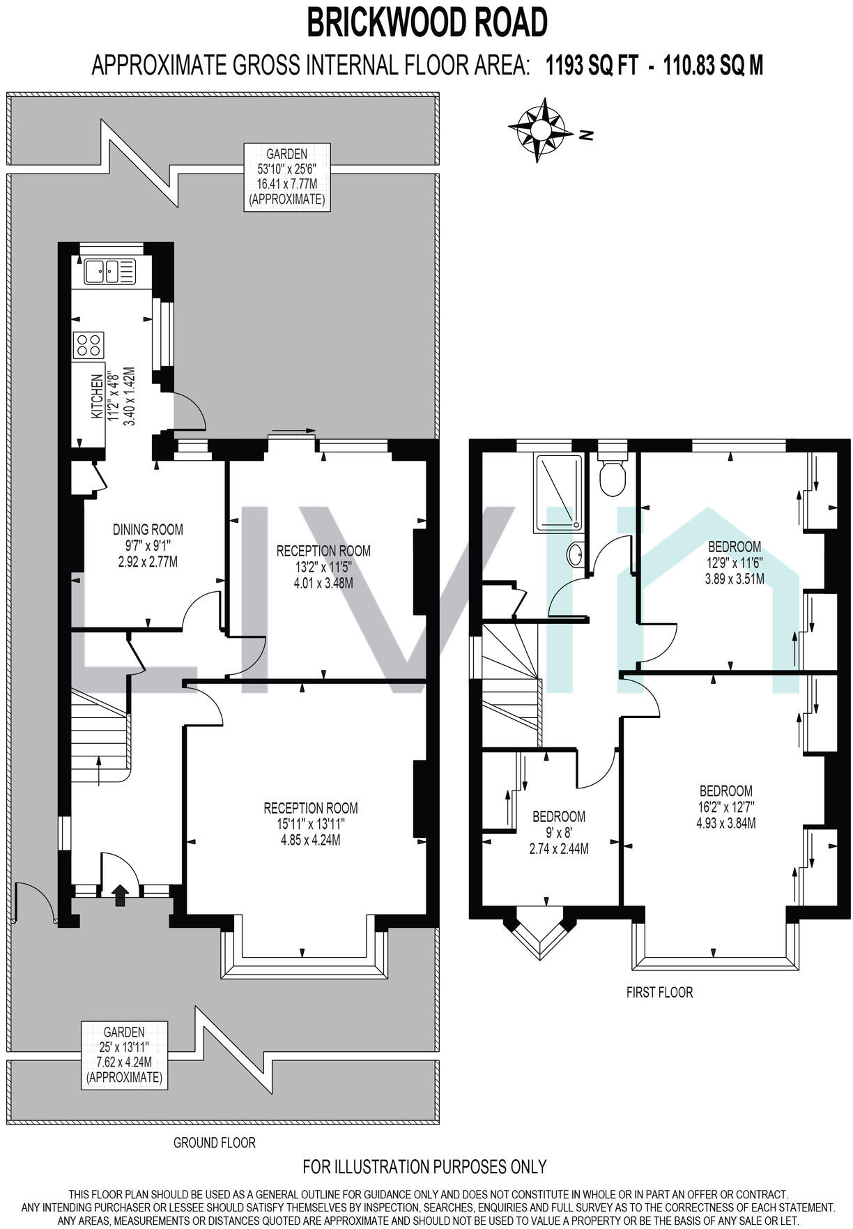
Chain-free three-bedroom semi on a quiet Croydon road, a short walk from East Croydon station. The house offers immediate occupancy with scope to modernise and add value—ideal for families or first-time buyers who want transport links and local amenities close by.
The ground floor includes a generous reception, separate dining room leading to a west-facing private garden, and a kitchen/diner. Upstairs are three well-proportioned bedrooms, a bathroom with a large walk-in shower cubicle and a separate WC (potential to combine into a larger family bathroom).
Built c.1930–1949 with solid brick walls and double glazing, the property is gas-heated with boiler and radiators. The small front garden could be converted to off-street parking (subject to planning). There is no flood risk and the location benefits from fast broadband and excellent mobile signal.
Considerations: the house shows dated finishes and will benefit from updating throughout; the solid brick walls likely lack cavity insulation and may need thermal improvement. Crime in the area is above average, and the plot size is small—buyers seeking larger gardens should note the limited outdoor space.
3 bedroom semi-detached house for sale in Oval Road, East Croydon, CR0 — £545,000 • 3 bed • 2 bath • 1180 ft²
3 bedroom end of terrace house for sale in Warren Road, Croydon, Surrey CR0 6PE, CR0 — £400,000 • 3 bed • 1 bath • 818 ft²
3 bedroom semi-detached house for sale in Addiscombe Court Road, Croydon, Surrey, CR0 — £550,000 • 3 bed • 1 bath • 1108 ft²
3 bedroom terraced house for sale in Turnpike Link, East Croydon, CR0 — £460,000 • 3 bed • 1 bath • 964 ft²
3 bedroom terraced house for sale in Amberley Grove, Croydon, CR0 — £500,000 • 3 bed • 1 bath • 1202 ft²
3 bedroom semi-detached house for sale in Chelsham Road, South Croydon, CR2 — £400,000 • 3 bed • 1 bath • 854 ft²


































































