Private garden, driveway and ready-to-move-in kitchen for new owners.
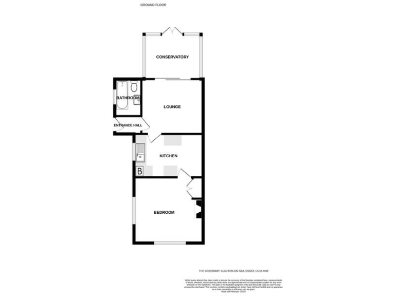
Detached single-storey bungalow on a generous plot
This detached bungalow offers a rare single-storey layout with generous indoor and outdoor space — ideal for first-time buyers or investors seeking rental potential. The property includes a modern kitchen and bathroom, conservatory, double glazing, and gas central heating. The large plot and off-street parking add practical appeal and scope for modest improvements.
Internally the layout is compact with one bedroom and several usable rooms across approximately 1,551 sq ft overall, giving flexible living arrangements and potential to reconfigure. The conservatory and rear garden provide light and outdoor living; the plot size is a key selling point for buyers wanting garden space or room to extend (subject to consents).
Buyers should note the wider area scores higher for deprivation and records above-average crime; purchasers may wish to consider security measures. The heating system is mains gas with a boiler and radiators (not tested) and the property was constructed in the mid-20th century, so standard maintenance and sensible surveys are recommended. Freehold tenure and very low council tax keep running costs attractive.
1 bedroom bungalow for sale in Burrs Road, Clacton on Sea, CO15 — £169,995 • 1 bed • 1 bath • 637 ft²
1 bedroom bungalow for sale in Lake Walk, Clacton on Sea, CO15 — £160,000 • 1 bed • 1 bath • 687 ft²
2 bedroom semi-detached bungalow for sale in Lymington Avenue, Great Clacton, CO15 — £240,000 • 2 bed • 1 bath • 623 ft²
2 bedroom detached bungalow for sale in Windsor Avenue, Clacton-On-Sea, CO15 — £230,000 • 2 bed • 1 bath
2 bedroom semi-detached bungalow for sale in The Greenway, Clacton-on-Sea, CO15 — £230,000 • 2 bed • 1 bath
2 bedroom bungalow for sale in Redbridge Road, Great Clacton, CO15 — £225,000 • 2 bed • 1 bath • 539 ft²






















































