Traditional character, large garden and seafront minutes away — ideal for families.
Three double bedrooms with bespoke fitted storage in principal bedroom
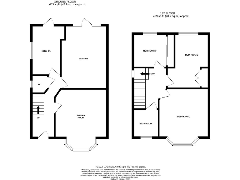
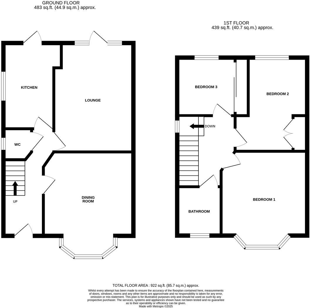
A handsome Edwardian semi with bay windows and high ceilings, minutes from Cleethorpes seafront. The house offers comfortable family living across two reception rooms: a bay-fronted sitting/dining room with an open fire and a rear lounge with a multi‑fuel stove. The practical galley kitchen and downstairs cloakroom add everyday convenience, while bespoke fitted storage in the main bedroom maximises space.
Outside, a generous rear garden and off‑street parking provide useful family amenities and entertaining potential. The property is double‑glazed (installed post‑2002) and heated by a mains gas boiler with radiators, offering efficient everyday use now.
Notable practical points: the home sits on solid brick walls (original construction) and may benefit from modern insulation improvements to reduce running costs. There is a single family bathroom upstairs and the house is of average overall size (around 922 sq ft), so buyers seeking more bathrooms or significantly larger accommodation should note this.
Well‑placed for families, the property lies in the catchment for well‑rated local primaries and is an easy walk to coastal amenities and leisure facilities. It combines period character with ready-to-enjoy living, suited to purchasers who value style, garden space and a coastal location but who may want to invest in energy‑efficiency upgrades over time.
3 bedroom semi-detached house for sale in Sherburn Street, Cleethorpes, DN35 — £265,000 • 3 bed • 1 bath • 1499 ft²
3 bedroom semi-detached house for sale in Braemar Road, Cleethorpes, DN35 — £200,000 • 3 bed • 1 bath • 983 ft²
3 bedroom semi-detached house for sale in Trinity Road, Cleethorpes, DN35 — £200,000 • 3 bed • 1 bath • 1174 ft²
3 bedroom semi-detached house for sale in Humberston Road, Cleethorpes, DN35 — £262,000 • 3 bed • 1 bath • 1004 ft²
3 bedroom semi-detached house for sale in Cromwell Road. Cleethorpes, DN35 — £325,000 • 3 bed • 1 bath • 1192 ft²
3 bedroom semi-detached house for sale in Queens Parade, Cleethorpes, DN35 — £285,000 • 3 bed • 1 bath • 926 ft²


































































































