Rare conversion opportunity with planning permission in private estate setting.
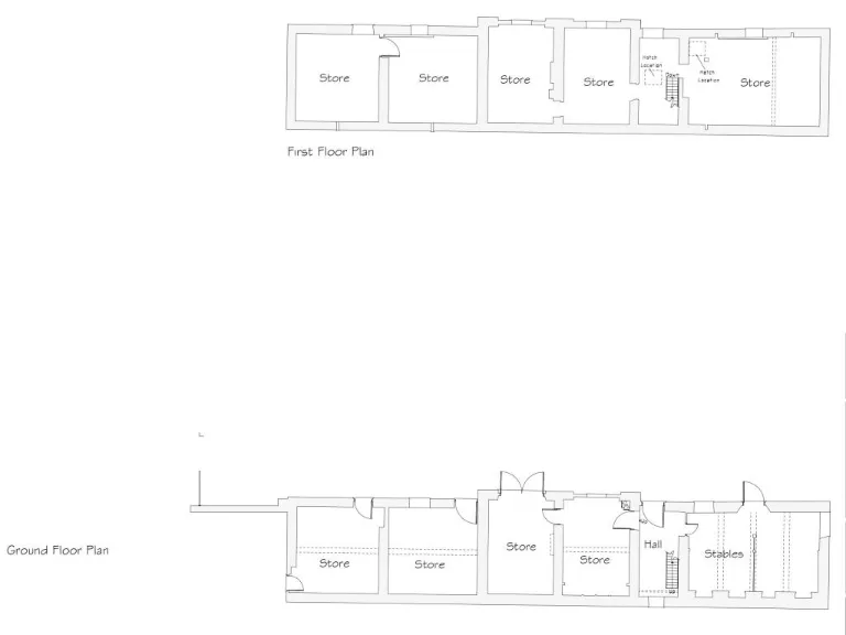
Stone-built former stable block with period character
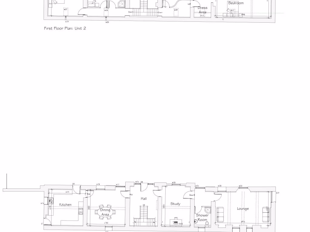
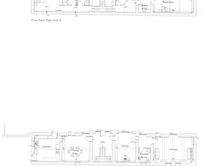
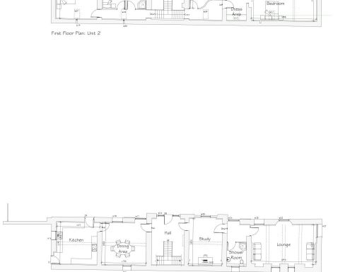
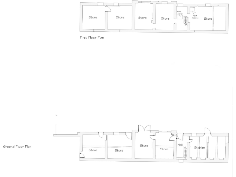
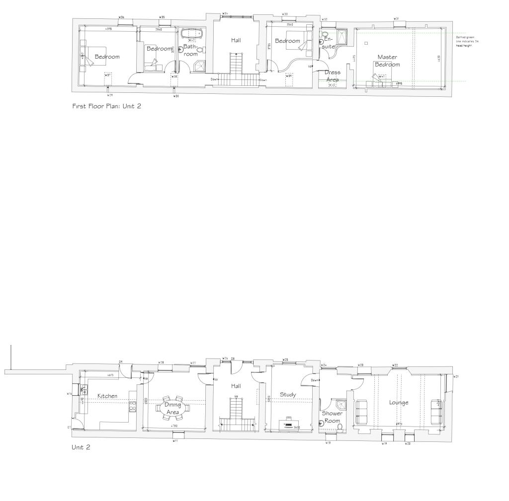
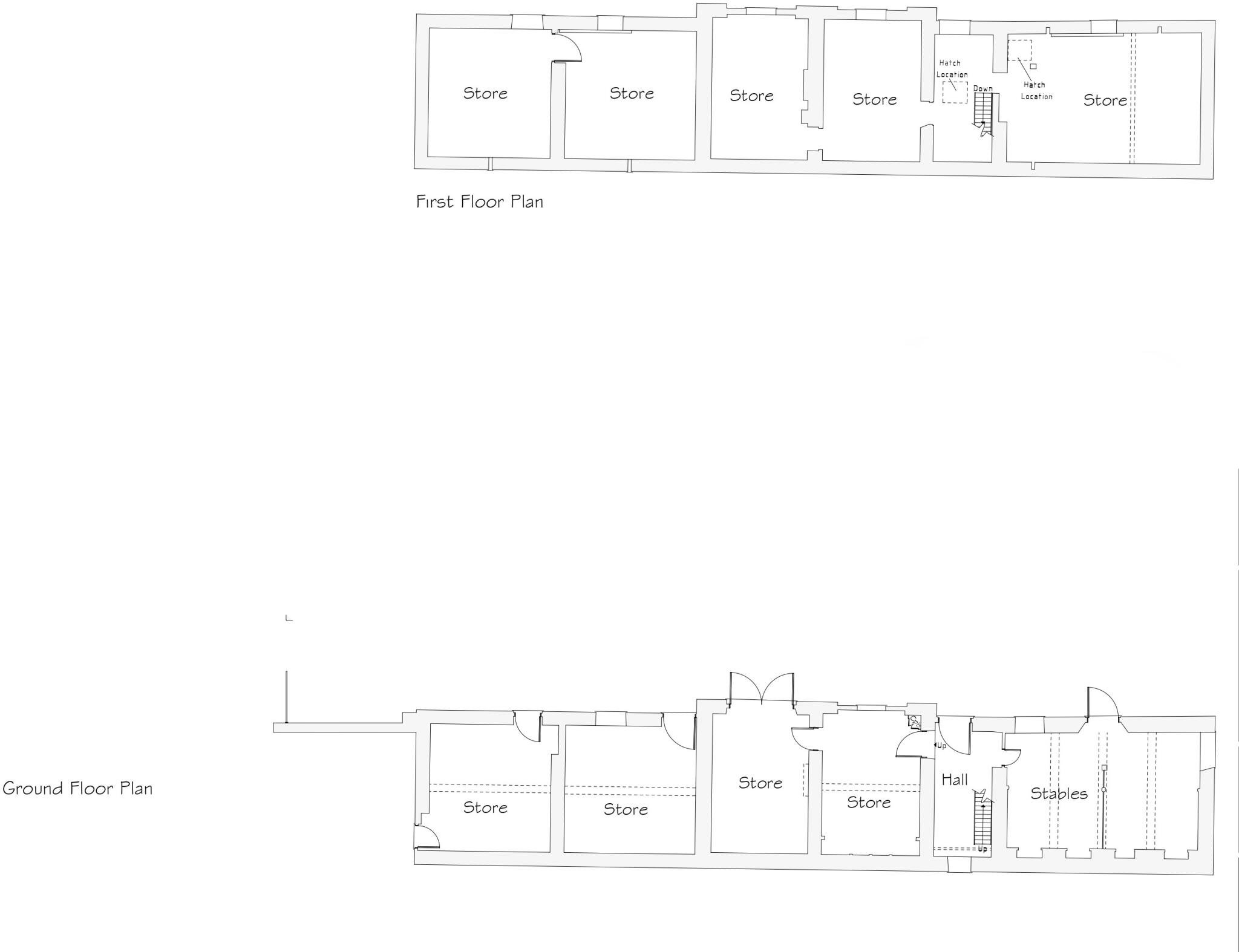
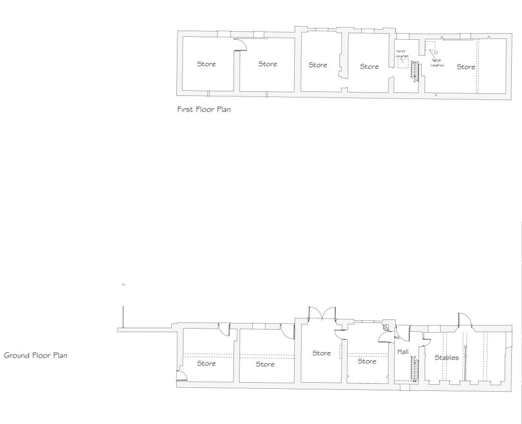
A stone-built former stable block set within approximately 0.3 acres on the Kinnerton Lodge Estate, offered with planning permission (ref 053005) to convert to a two-storey four-bedroom home. The building retains period character and sits in a private rural setting with woodland, paddocks and landscaped grounds, only seven miles from Chester and minutes from the A55. The sale will be by online auction on 22 October 2025 unless sold prior under auction terms.
Planning permission is granted but the building has Grade II listed status, which will require sensitive, potentially costly listed-building consent and specialist works. The conversion scope includes three reception rooms, kitchen, four bedrooms (one with en-suite and dressing room) and a garage; services are noted as water and wood, and broadband speeds are slow.
This lot suits a buyer with renovation experience or a developer comfortable with listed properties and auction purchase terms. The large plot and estate setting offer strong curb appeal and privacy; the work required and conservation constraints are the main considerations. No flood risk and very low local crime are positives, while the local area shows high deprivation and average mobile signal—factors to weigh for long-term occupation or rental use.
4 bedroom detached house for sale in The Coach House, Kinnerton Lane, Chester, CH4 — £405,000 • 4 bed • 2 bath • 1643 ft²
Commercial property for sale in Broad Oak Farm, Burton, Llyndir Lane, Rossett, Wrexham, Wrexham, LL12 0AU, LL12 — £900,000 • 1 bed • 1 bath
2 bedroom detached house for sale in Rose Cottage, Y Gors Gwynfryn, Wrexham, LL11 5UW, LL11 — £150,000 • 2 bed • 1 bath • 468 ft²
Land for sale in 4.26 Acres Pastureland At Bennetts Lane/higher Kinnerton, Nr Chester, CH4 — £64,000 • 1 bed • 1 bath
4 bedroom barn conversion for sale in Stringers Lane, Higher Kinnerton, Chester, Flintshire, CH4 — £600,000 • 4 bed • 2 bath • 2002 ft²
2 bedroom house for sale in Bryn Road, Alltami, Mold, Flintshire, CH7 — £240,000 • 2 bed • 2 bath • 2157 ft²






































































