Character three-bed with large garden and approved building plot — development potential in village setting..
- Three-bedroom Victorian semi with two reception rooms
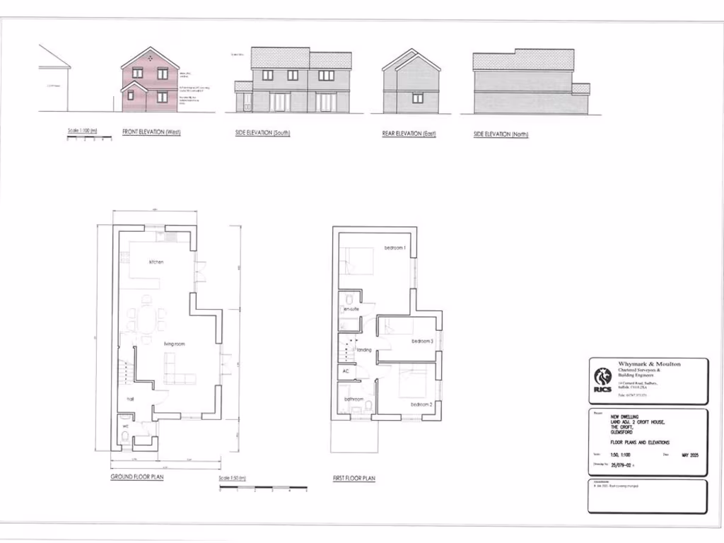
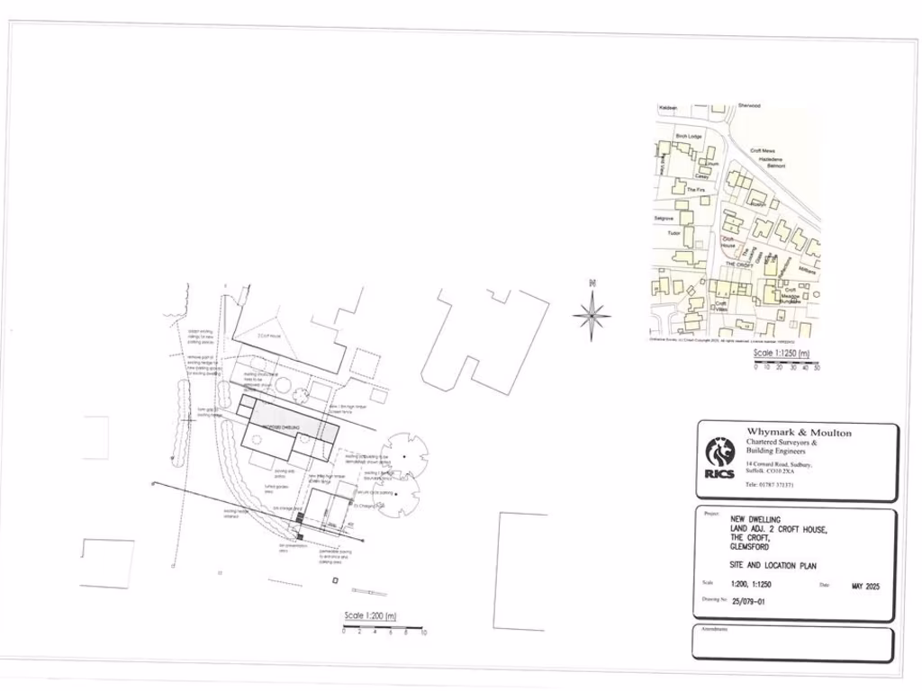
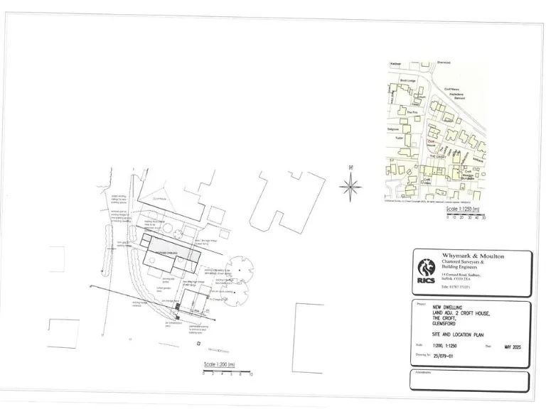
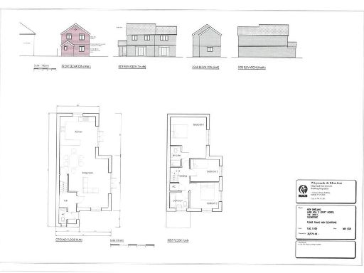
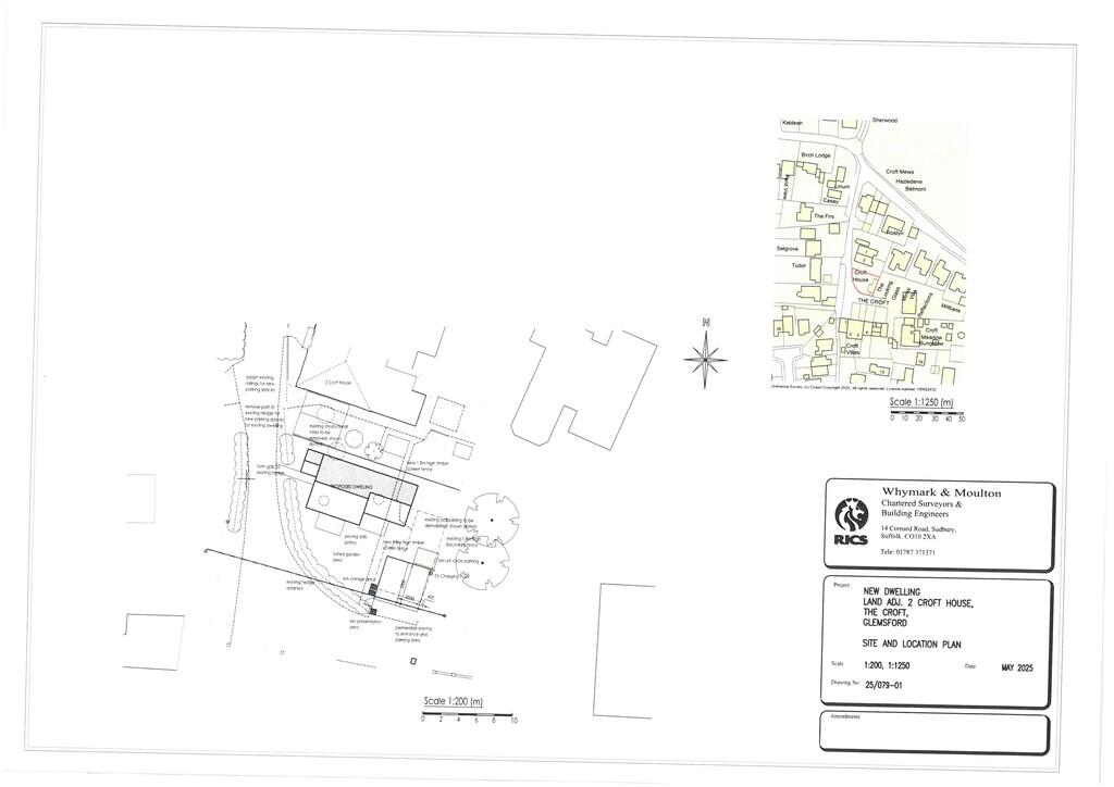
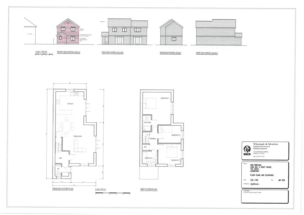
- Large garden and separate building plot with full planning permission
- Off-street parking and gas central heating
- Single family bathroom only; one bathroom for three bedrooms
- Average overall size (865 sq ft) and standard ceiling heights
- Broadband speeds are average; mobile signal excellent
- Village location with shops, pub, and primary school nearby
- Planning details must be checked; development will incur extra costs
A traditional three-bedroom Victorian semi in Glemsford offering comfortable family living and a large rear garden with off-street parking. The ground floor has two reception rooms and a practical kitchen with an adjoining lean-to; upstairs are three bedrooms and a single family bathroom. Gas central heating and useful built-in storage make this a sensible everyday home close to village amenities.
A notable value opportunity is the adjoining building plot for which full planning permission has been granted. That plot, combined with the sizeable garden, gives potential for extension, redevelopment or investment income — subject to reviewing the planning details and build costs. Broadband is average and planning documentation should be inspected to confirm scope and conditions.
Occupying a slightly elevated village position, the home sits within walking distance of shops, a pub and a primary school. Sudbury is about six miles away for wider services and commuting links. The property is best for buyers seeking character, outdoor space and development potential; those needing multiple bathrooms, modern high-speed internet or immediate turnkey finishes should allow for updating and possible build works.
This freehold house provides a straightforward base with room to personalise. Buyers who value village life and countryside access will appreciate the location and the rare addition of an approved building plot — but factor in costs and timescales if you plan to develop.
3 bedroom semi-detached house for sale in The Pippins, Glemsford, CO10 — £265,000 • 3 bed • 1 bath • 787 ft²
3 bedroom semi-detached house for sale in Tye Green, Glemsford, Suffolk, CO10 — £270,000 • 3 bed • 2 bath • 760 ft²
2 bedroom end of terrace house for sale in Egremont Street, Glemsford, CO10 — £210,000 • 2 bed • 1 bath • 673 ft²
2 bedroom cottage for sale in Churchgate, Glemsford, Suffolk, CO10 — £219,950 • 2 bed • 1 bath • 433 ft²
3 bedroom terraced house for sale in Broadway, Glemsford, Sudbury, Suffolk, CO10 — £260,000 • 3 bed • 1 bath • 1042 ft²
3 bedroom semi-detached house for sale in Causeway Close, Glemsford, CO10 — £300,000 • 3 bed • 1 bath • 875 ft²


































































































