Chain-free flat with parking and strong transport links, ready for modernisation.
Top-floor flat with Velux windows for natural light
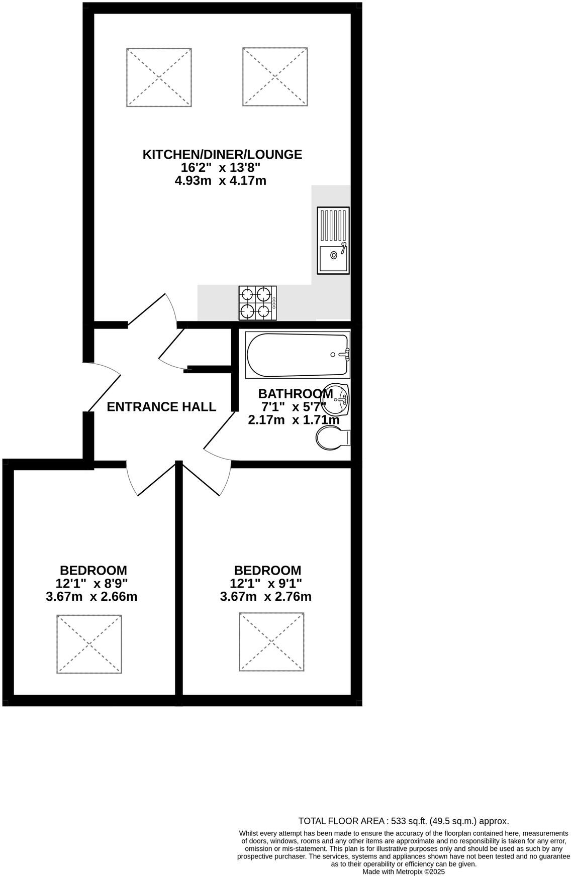
Two double bedrooms with useful storage
Open-plan living/kitchen — compact but bright
Allocated off-street parking space included
Chain-free sale; long lease (c.980 years)
Needs full modernisation; kitchen and bathroom updates required
Management charge ~£153.35 pcm; ground rent £150 pa
Area has above-average crime and local deprivation
A top-floor, chain-free flat with long lease and allocated parking, offering a clear entry into property ownership or the rental market. The open-plan living area benefits from Velux windows and integrated kitchen units, creating a bright social space despite the compact overall footprint.
The property requires modernisation throughout — cosmetic and likely kitchen/bathroom updates are needed — which presents scope to add value. Heating is by electric storage heaters and the flat is leasehold with a management charge (£153.35 pcm) and small ground rent (£150 pa).
Location is practical for commuters: Avonmouth Train Station, multiple bus routes and quick access to the M5 are nearby. Local shops, amenities and several well-rated primary and secondary schools sit within easy reach, while broadband and mobile signal are strong.
Buyers should note the wider area shows higher-than-average crime and relative deprivation; the property is best suited to buyers prepared to renovate or investors targeting rental income. The very long lease (c.980 years) and chain-free sale are significant positives that reduce purchase friction.
2 bedroom flat for sale in Fishponds Road, Eastville, Bristol BS5 6SD, BS5 — £175,000 • 2 bed • 1 bath • 571 ft²
2 bedroom flat for sale in The Savoy, Station Road, Shirehampton, Bristol, BS11 — £190,000 • 2 bed • 1 bath • 430 ft²
2 bedroom flat for sale in Royal Victoria Park, Bristol, BS10 — £180,000 • 2 bed • 2 bath • 657 ft²
2 bedroom flat for sale in Brigstow Apartments, High Street, Shirehampton, BS11 — £210,000 • 2 bed • 1 bath • 531 ft²
2 bedroom flat for sale in St. Andrews Road, Avonmouth, Bristol, BS11 — £185,000 • 2 bed • 1 bath • 441 ft²
1 bedroom flat for sale in Imperial Chambers, Gloucester Road, Avonmouth, Bristol, BS11 — £130,000 • 1 bed • 1 bath • 457 ft²






































