Compact, low-maintenance flat ideal for town-centre convenience and community living.
Top-floor retirement apartment, chain-free
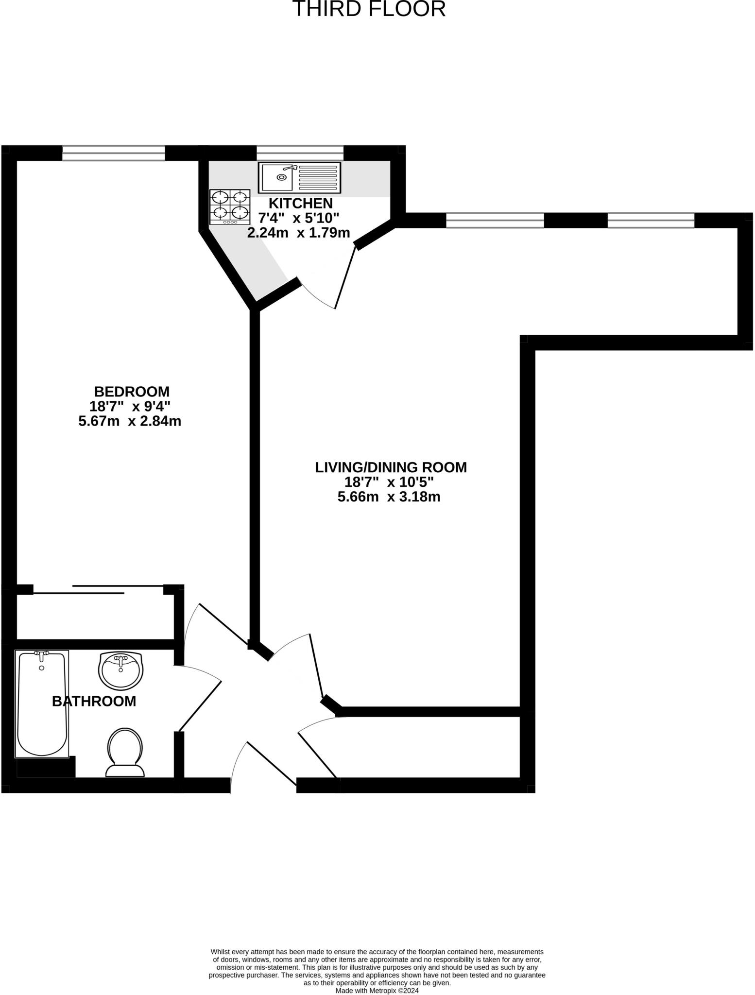
A purpose-built retirement apartment in central Farnborough, this one-bedroom flat offers low-maintenance living close to the town centre and station. The accommodation includes a living/dining room, double bedroom with fitted wardrobes and a modern fitted kitchen with integrated appliances. The bathroom has an easy-access mobility bathtub for practical, comfortable bathing.
Set within a managed retirement complex with communal reception, laundry room and mature communal gardens with patio seating, the flat is chain-free for a straightforward purchase. Eligibility is restricted to single purchasers aged 60+ or couples where one partner is 60+ and the other at least 55. Electric storage heating and double glazing help with efficiency, while the EPC is C (77).
Buyers should note this is a leasehold property with a service charge (approx. £2,949.14/year) and ground rent (£395/year). The apartment is compact at around 411 sq ft and sits in an area with very high local crime rates, which may concern some purchasers. Lease length is currently TBC and should be confirmed before exchange.
1 bedroom retirement property for sale in Farley Court, Church Road East, Farnborough, Hampshire, GU14 — £115,000 • 1 bed • 1 bath • 381 ft²
1 bedroom retirement property for sale in Victoria Road, Farnborough, Hampshire, GU14 — £145,000 • 1 bed • 1 bath • 438 ft²
1 bedroom flat for sale in Victoria Road, Farnborough, Hampshire, GU14 — £90,000 • 1 bed • 1 bath • 357 ft²
1 bedroom apartment for sale in Meadsview Court, Clockhouse Road, Farnborough , GU14 — £80,000 • 1 bed • 1 bath • 475 ft²
1 bedroom retirement property for sale in South Street, Farnham, GU9 — £120,000 • 1 bed • 1 bath • 408 ft²
1 bedroom retirement property for sale in South Street, Farnham, GU9 — £136,000 • 1 bed • 1 bath • 405 ft²










































































