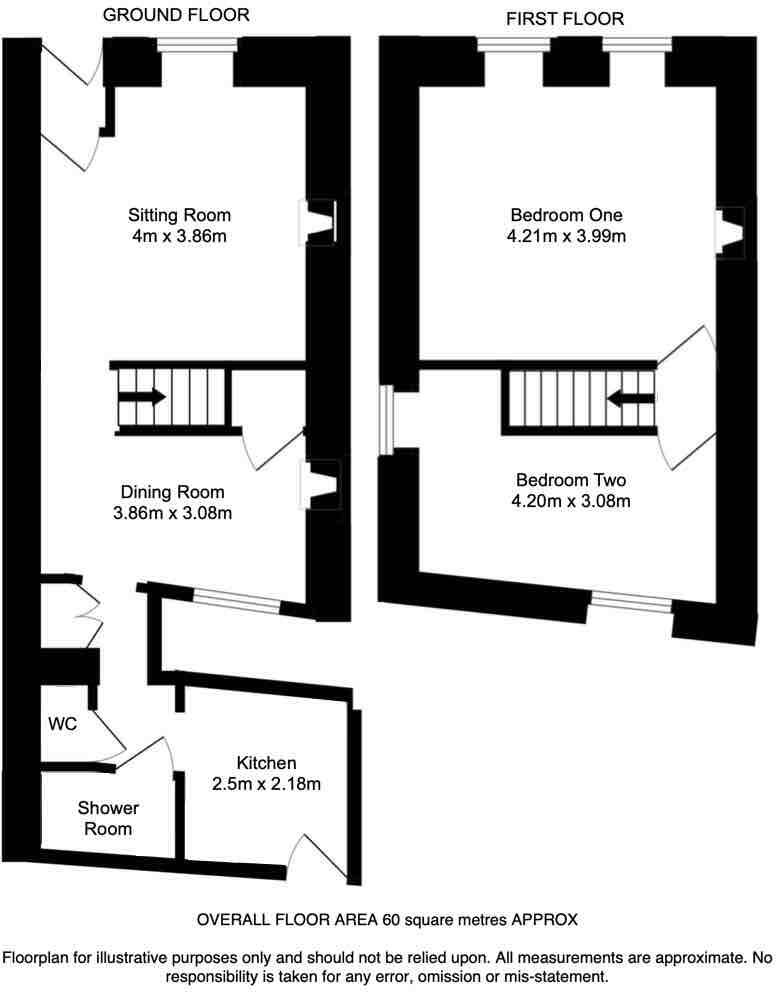
**Standout Features:**
- Quaint two-bedroom end terrace cottage in Padstow's Old Town
- Charming traditional features including woodburning stoves and granite walls
- Bright, newly refurbished kitchen with Velux window
- Sunny raised courtyard, perfect for entertaining
- Low maintenance with no onward chain and council tax band B
- Established holiday let potential
**Summary:**
Welcome to Mabley Cottage, a charming two-bedroom end terrace nestled in the heart of Padstow's Old Town. With a delightful character defined by its granite stone exterior and period features, this home offers an inviting atmosphere perfect for relaxation or investment as a holiday let. The bright, cozy living room adorned with a woodburning stove and window seat is perfect for enjoying cool Cornish evenings, while the spacious dining room provides an intimate setting for meals with loved ones.
The recently updated kitchen, flooded with natural light, opens up to a sunny courtyard—a tranquil outdoor retreat ideal for dining and entertaining. Upstairs, you will find two serene bedrooms decorated in a soothing coastal palette, promising restful nights.
While the cottage boasts low council tax and no onward chain, potential buyers should note that the walls lack insulation, which may require attention for energy efficiency. However, this charming property is a true gem in an idyllic setting, offering peaceful living with future renovation potential. Don’t miss out on the chance to own this unique lifestyle opportunity in a stunning location—perfect as a cozy home or a lucrative holiday let!
2 bedroom terraced house for sale in Barrys Lane, Padstow, Cornwall, PL28 — £450,000 • 2 bed • 1 bath • 851 ft²
3 bedroom cottage for sale in Cross Street, Padstow, PL28 — £668,500 • 3 bed • 2 bath • 1194 ft²
1 bedroom end of terrace house for sale in High Street, Padstow, PL28 — £475,000 • 1 bed • 1 bath • 614 ft²
2 bedroom terraced house for sale in Plum Cottage, Padstow, Cornwall, PL28 — £675,000 • 2 bed • 1 bath • 920 ft²
2 bedroom detached house for sale in St. Edmunds Lane, Padstow, Cornwall, PL28 — £600,000 • 2 bed • 2 bath • 964 ft²
2 bedroom terraced house for sale in Cross Street, Padstow, PL28 — £395,000 • 2 bed • 1 bath • 581 ft²






























































