Well-proportioned three-bedroom villa with private gardens, ideal for families or first-time buyers seeking value..
Private enclosed front and rear gardens, safe for children and pets
On-street parking directly outside the property
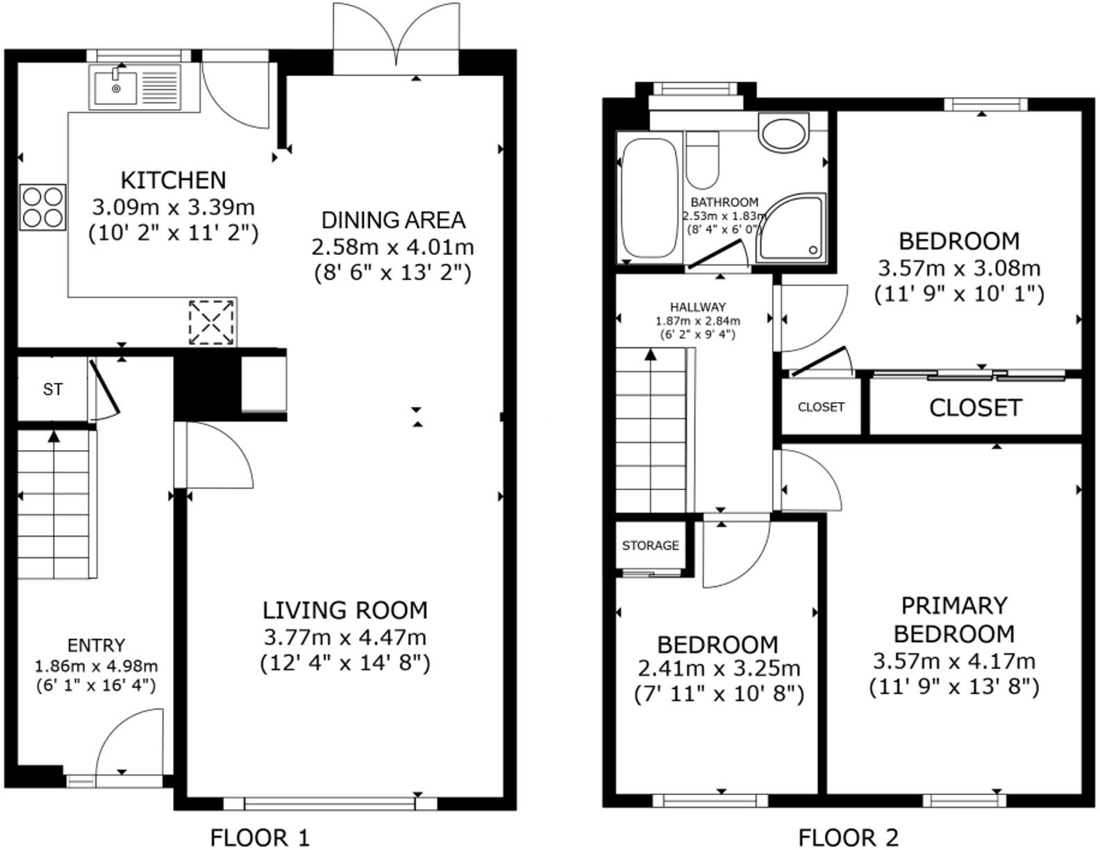
Freehold three-bedroom mid-terraced villa, about 893 sq ft
Bright kitchen/diner with direct garden access
Single family bathroom only, may be limiting for larger households
Well-presented but offers scope for modernisation and personalisation
Excellent mobile signal and fast broadband for home-working
Located in an area with higher deprivation; consider local market dynamics
This well-proportioned three-bedroom mid-terraced villa offers practical family living across two levels in Bannockburn. The ground floor features a comfortable lounge and a bright kitchen/diner with direct access to a secure rear garden, making everyday life and entertaining straightforward. The property is freehold and extends to approximately 893 sq ft, providing a sensible footprint for growing households or first-time buyers moving up.
Upstairs are three flexible bedrooms and a single family bathroom. The house is presented in good overall condition with mid-20th-century pebble-dash character and contemporary interior touches; there is scope for personalisation to modernise finishes or reconfigure spaces according to needs. Excellent mobile signal and fast broadband support home-working or streaming without issue.
Externally the property benefits from private, enclosed front and rear gardens with secure boundaries — suitable for children or pets — and on-street parking directly outside. Local amenities, schools, public transport and community facilities are all within easy reach, making daily routines convenient.
Buyers should note the surrounding area has higher levels of deprivation, which can affect local services and resale dynamics. The house has a single bathroom and an average overall size, and while well-presented, some modernisation will increase long-term value. These factors make the property best suited to families, first-time buyers, or investors seeking a straightforward refurbishment opportunity in a well-established neighbourhood.
3 bedroom terraced house for sale in Benview, Bannockburn, Stirling, FK7 — £195,000 • 3 bed • 2 bath • 627 ft²
3 bedroom end of terrace house for sale in Duke Street, Bannockburn, Stirling, Stirlingshire, FK7 — £160,000 • 3 bed • 1 bath • 1768 ft²
2 bedroom terraced house for sale in Wallace Street, Bannockburn, Stirling, Stirlingshire, FK7 — £125,000 • 2 bed • 1 bath • 581 ft²
3 bedroom end of terrace house for sale in Chamfron Gardens,Stirling, FK7 — £190,000 • 3 bed • 2 bath • 694 ft²
4 bedroom detached house for sale in Cringate Gardens, Bannockburn, FK7 — £300,000 • 4 bed • 1 bath • 1421 ft²
3 bedroom terraced house for sale in Park Crescent, Bannockburn, Stirling, FK7 — £150,000 • 3 bed • 1 bath • 862 ft²






































































