**Standout Features:**
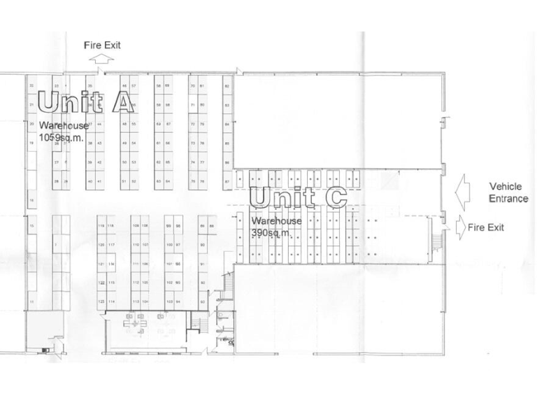
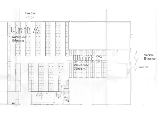
- Mid-terrace industrial unit with a total GIA of 16,023 sq ft
- Two-storey office block covering 2,346 sq ft
- Large warehousing area of 10,660 sq ft, plus additional storage space
- Mezzanine floor providing an extra 3,533 sq ft
- Parking for approximately 24-25 vehicles
- Located within the established Lopen Business Park, just 2 miles from the A303
- Chain-free purchase option
- Potential for separate sale of adjoining unit with additional amenities
**Summary Description:**
This expansive mid-terrace industrial unit offers a versatile space suitable for various commercial operations. With an impressive total area of 16,023 sq ft, it features a well-appointed two-storey office block and a spacious warehousing section, complete with high ceilings and ample natural light from skylights. The property is equipped with essential amenities, including WCs, air conditioning, and high-capacity electric roller shutter doors that enhance accessibility.
Located within the Lopen Business Park, this unit provides excellent proximity to transport links and neighboring towns, making it ideal for businesses seeking visibility and connectivity. The expansive concrete forecourt allows for substantial vehicle access and parking, catering to logistical needs.
While the property is structurally sound, it offers further potential for customization or expansion to suit specific business requirements. Be part of an established business community—this unique opportunity won't last long at this competitive guide price of £1,250,000.
Light industrial facility for sale in Lopen Business Park, Mill Lane, South Petherton, TA13 — £350,000 • 1 bed • 1 bath • 4190 ft²
Light industrial facility for sale in Unit 3 (Gamma), Morgans Business Park, Henstridge, BA8 0TN, BA8 — POA • 1 bed • 1 bath • 28426 ft²
Light industrial facility for sale in Slape Industrial Estate, Station Road, Ilminster, Somerset, TA19 9BL, TA19 — £320,000 • 1 bed • 1 bath • 3307 ft²
Light industrial facility for sale in UNIT TO LET/FOR SALE, 4/5 Dampier Mews, Edwards Close, Yeovil BA22 8RU, BA22 — £325,000 • 1 bed • 1 bath • 4581 ft²
Light industrial facility for sale in Unit 4 (Delta), Morgans Business Park, Henstridge, BA8 0TN, BA8 — POA • 1 bed • 1 bath • 1366 ft²
Light industrial facility for sale in INDUSTRIAL UNIT FOR SALE, WAREHOUSE FOR SALE, Units 1-3 at 4 Artillery Road, Yeovil BA22 8RP, BA22 — £1,000,000 • 1 bed • 1 bath • 10206 ft²


















































