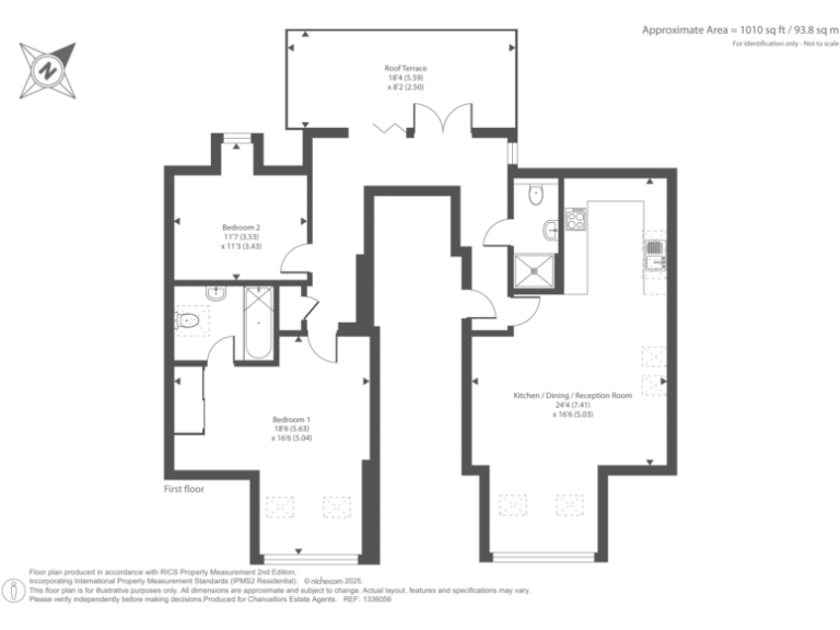
**Standout Features:**
- Modern two-bedroom, two-bathroom penthouse
- Private roof terrace with stunning views
- Allocated parking for 2 cars
- Elevator access in an exclusive development
- Open plan living space with contemporary finishes
- Close proximity (0.2 miles) to High Wycombe train station
- Communal gardens for leisure and relaxation
- Leasehold with 125 years remaining
This modern two-bedroom, two-bathroom penthouse apartment is a remarkable find situated on Amersham Hill, a short walk from High Wycombe train station. Ideal for first-time buyers or small families, the property boasts an inviting open plan living area with upscale fittings, creating a perfect space for entertaining or relaxing. A standout feature is the private roof terrace, providing a unique outdoor escape with picturesque views—ideal for enjoying sunny days or hosting friends.
Enjoy the convenience of allocated parking for two cars and a peaceful ambiance within an exclusive, low-crime community. The well-maintained communal gardens offer a pleasant retreat right at your doorstep. With a reasonable service charge and council tax, the property is also appealing for investors looking to secure a rental in a highly sought-after area.
Given its location, spaciousness, and modern comforts, this penthouse is not just a home but a lifestyle choice. Don't miss out on the chance to make this exclusive property yours today!
2 bedroom apartment for sale in Station Road, Amersham, Buckinghamshire, HP7 — £325,000 • 2 bed • 1 bath • 870 ft²
2 bedroom apartment for sale in Penn Road, Knotty Green, HP9 — £995,000 • 2 bed • 2 bath • 1625 ft²
2 bedroom apartment for sale in Kingsmead Road, Loudwater, High Wycombe, HP11 — £425,000 • 2 bed • 2 bath • 1122 ft²
2 bedroom flat for sale in Beech Trees Road, High Wycombe, HP12 — £330,000 • 2 bed • 2 bath • 999 ft²
2 bedroom apartment for sale in Amersham Road, High Wycombe, HP13 — £375,000 • 2 bed • 2 bath • 887 ft²
2 bedroom apartment for sale in Amersham Road, High Wycombe, HP13 — £325,000 • 2 bed • 2 bath • 1056 ft²






















































































