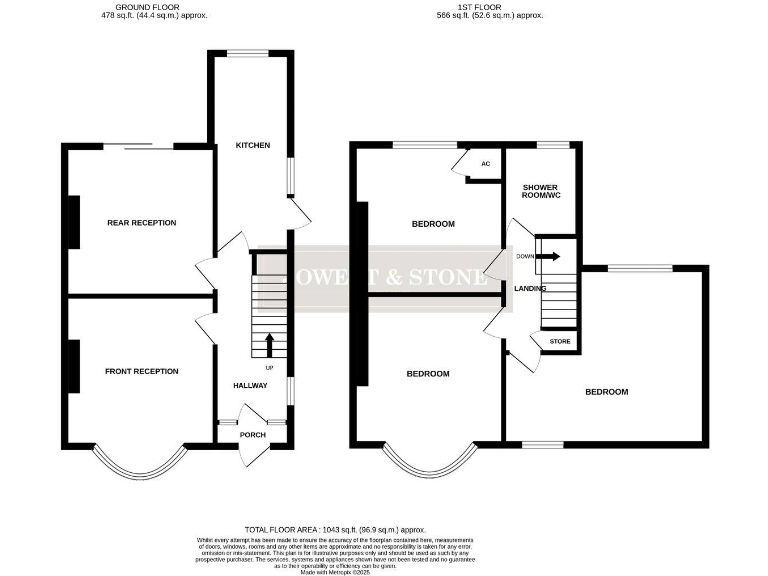
Extended traditional bay-fronted semi-detached layout
This extended, traditional bay-fronted semi-detached house sits on a generous plot in Whetstone, with easy access to the M1/M69 and Fosse Park. The layout offers two reception rooms, an extended kitchen and three good-sized bedrooms — including a large master created by an earlier extension — making it well suited to a growing family. Off-street parking is excellent with a wide gravel driveway, car port and rear garage.
The property does need some improvement and modernisation: the EPC rating is E and the house appears to retain solid brick walls with no known insulation upgrades. The bathroom is a practical shower room rather than a full modern bath suite. Buyers should plan for updating heating, electrics or decoration to bring the house to contemporary standards.
Practical benefits include mains gas central heating, double glazing (install date unknown), fast broadband and excellent mobile signal. Local amenities and schools are within easy reach, and the no upward chain sale simplifies timing for purchasers seeking a quicker move. Viewing is recommended to appreciate the room proportions and garden.
Overall this is a spacious, traditionally built family home with strong parking and garden space, offering clear scope to add value through targeted renovation and energy-efficiency improvements.
3 bedroom semi-detached house for sale in Enderby Road, Whetstone, Leicester, LE8 6JJ, LE8 — £250,000 • 3 bed • 1 bath • 757 ft²
3 bedroom semi-detached house for sale in Spinney Halt, Whetstone, Leicester, LE8 — £265,000 • 3 bed • 1 bath • 844 ft²
3 bedroom semi-detached house for sale in Attfield Drive, Whetstone, Leicester, Leicestershire, LE8 — £275,000 • 3 bed • 2 bath • 1320 ft²
3 bedroom semi-detached house for sale in Warwick Road, Whetstone, Leicester, LE8 — £350,000 • 3 bed • 1 bath • 1546 ft²
3 bedroom semi-detached house for sale in Attfield Drive, Whetstone, Leicester, LE8 — £250,000 • 3 bed • 1 bath • 797 ft²
3 bedroom semi-detached house for sale in Buxton Close, Whetstone, Leicester, Leicestershire, LE8 — £230,000 • 3 bed • 1 bath • 829 ft²


























































