**Standout Features:**
- Investment opportunity: Cash purchase only
- Freehold with five flats (2 split-level 1-bedroom apartments + 3 additional 1-bedroom apartments)
- Overlooks Gloucester Park, providing serene views
- Gas central heating throughout
- Close to amenities and within walking distance of the city center
- Low council tax band (A)
**Concerns:**
- Significant renovation required across the property
- EPC Ratings varying from C to E
- High local crime rates and area deprivation
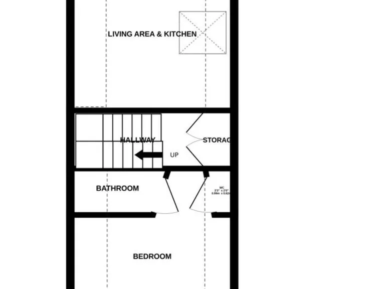
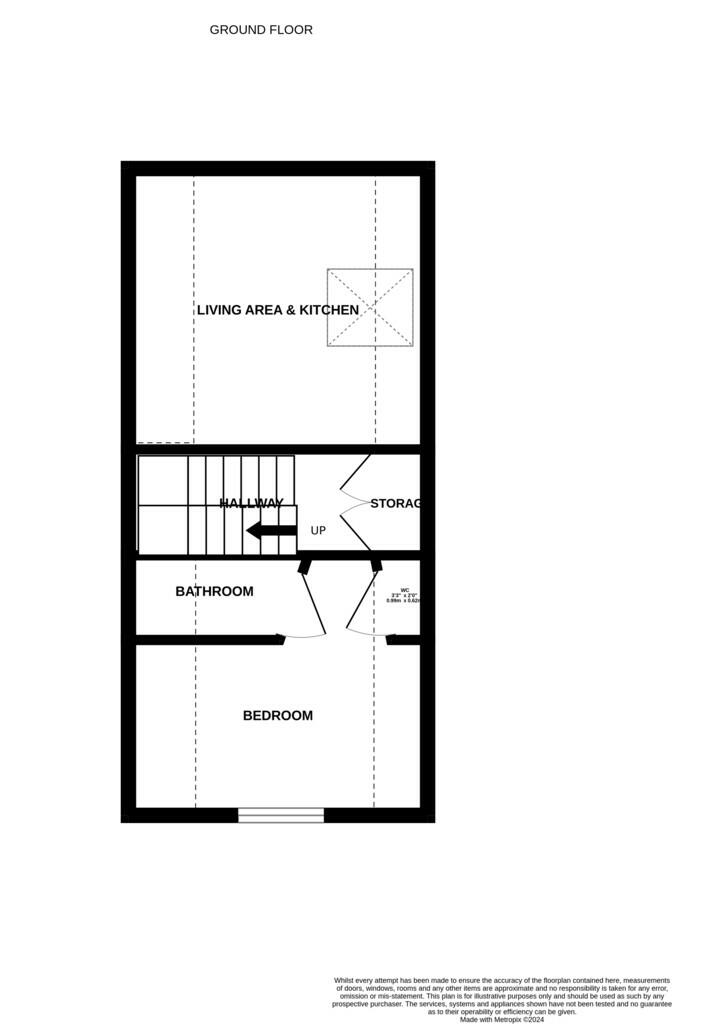
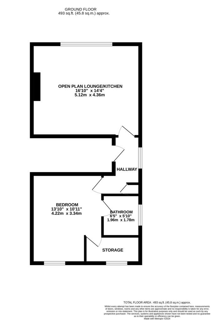
This semi-detached property at 37 Park Road offers a unique investment opportunity for cash buyers looking to expand their portfolio. The building houses five flats—two split-level and three standard one-bedroom units—each featuring charming Victorian architecture with tall ceilings and bay windows, ensuring an abundance of natural light. Positioned conveniently near Gloucester Park, residents can enjoy picturesque views and easy access to local amenities.
While the property holds fantastic potential for rental returns, it does require significant renovation, presenting a canvas for investors willing to put in the work. EPC ratings range from C to E, reflecting the varying condition of the units. With a very affordable council tax band, this investment could yield great returns in a cosmopolitan and diverse neighborhood. However, prospective buyers should be aware of the elevated local crime rates and the need for substantial upkeep. Don’t miss out on this chance to create a valuable asset—properties like this typically move fast!
7 bedroom semi-detached house for sale in Park Road, Gloucester, GL1 — £375,000 • 7 bed • 7 bath
5 bedroom semi-detached house for sale in 3 Flats, GL1 — £480,000 • 5 bed • 3 bath • 625 ft²
5 bedroom detached house for sale in Stroud Road, Gloucester, Gloucestershire, GL1 — £425,000 • 5 bed • 5 bath • 2852 ft²
House for sale in Residential Investment, 19-21 Brunswick Road, Gloucester, GL1 1HG, GL1 — £1,800,000 • 1 bed • 1 bath • 4637 ft²
1 bedroom flat for sale in Midland Road, Gloucester, Gloucester, GL1 — £65,000 • 1 bed • 1 bath • 317 ft²
5 bedroom block of apartments for sale in Alexandra Road, Gloucester, GL1 — £450,000 • 5 bed • 4 bath • 2016 ft²






























































